Ingatlan Televízió
Ingatlan Televízió
további hirdetések
adatlap bezárása

Heves 
 

Hivatkozási szám: 5844984
Ingatlan adatai
Irányár: 59 900 000 Ft
Típus: ház
Kategória: eladó
Alapterület: 160 m2
Fűtés: gáz (cirko)
Állapota: felújított
Szobák száma: 4
Építés éve: 1970
Szintek száma: 1
Részletes leírás
Kizárólag az OTP Ingatlanpont kínálatában!

Heves város központjában eladásra kínálunk egy 160 m2-es, kiváló elosztású, jó állapotú családi házat, amely egy 1381 m2-es, gondozott telken helyezkedik el
és hitelmentes, jogilag rendezett tulajdoni viszonyokkal rendelkezik.
Az ingatlan elhelyezkedésének köszönhetően kiváló infrastruktúrával bír: a közelben található hivatalok, bankok, posta, óvoda, élelmiszerüzletek és közműszolgáltatók, valamint parkok és játszóterek biztosítják a kellemes, családbarát környezetet.

A masszív vályogfalakra épült, stabil alapokon nyugvó ház 1975-ben épült, és az évek során több felújításon és korszerűsítésen esett át.
A padlás és hátsó fal szigetelése, a hibamentes tetőszerkezet, valamint a műanyag nyílászárók hosszú távon biztosítják a komfortos és energiahatékony lakhatást.
A fűtést három éves kondenzációs gázkazán és vegyes tüzelésű kazán szolgálja, melyhez külön tüzelőtároló tartozik, továbbá inverteres klímaberendezések gondoskodnak a megfelelő hőmérsékletről az év minden időszakában.
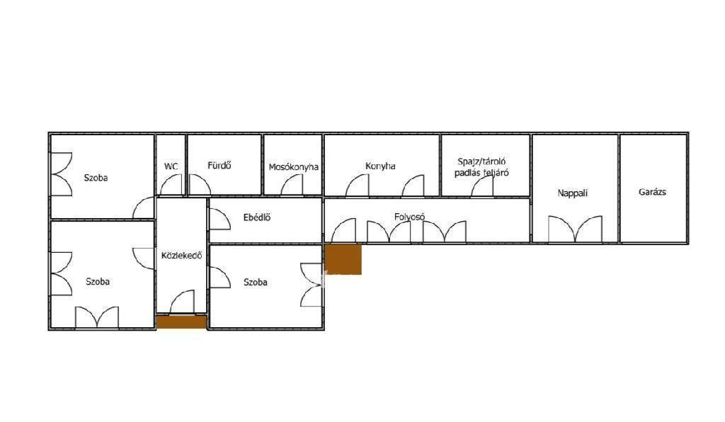
A tágas belső térben három szoba, nappali, gardrób, mosókonyha, éléskamra, beépített tárolószekrények és pince is helyet kapott, így a helyiségek elosztása mind funkcionálisan, mind esztétikailag átgondolt.
A beépített, gépesített konyha modern, praktikus és a mindennapokban is kényelmes használatot biztosít.

A külső tér rendkívül igényesen kialakított: térkővel burkolt belső udvar, díszkaviccsal terített előkert, valamint nagy, parkosított hátsó kert biztosítja a kellemes, otthonos környezetet.
A garázs, a fűthető melléképület (műhely) és a fedett, nyitott kerti helyiség további kényelmet és lehetőséget nyújt a házhoz kapcsolódó tevékenységekhez. A telken háromfázisú villanyhálózat, fúrt kút, több kültéri vízvételi lehetőség (belső és hátsó udvaron vízcsap), valamint zárt külső tároló és belső udvari vízelvezetés is rendelkezésre áll.
A riasztórendszer biztonságot, a rendezett udvar és a masszív szerkezeti megoldások pedig hosszú távú értékállóságot garantálnak.
Ez az ingatlan ideális választás mindazok számára, akik Heves központjában keresnek tágas, jól karbantartott, azonnal költözhető családi házat, amelyben a városi kényelem és a kertvárosi nyugalom tökéletes harmóniában van jelen.

Irodánk teljes körű szolgáltatást nyújt ügyfeleinek:
?? OTP Bank hátterével díjmentes, személyre szabott hitel- és támogatási tanácsadást biztosítunk (CSOK, Falusi CSOK, Babaváró, 3% Otthon Start lakáshitel).
?? Energetikai tanúsítvány, értékbecslés és jogi háttér biztosítása.
?? Teljes körű ügyintézés az adásvétel teljes folyamatában.

Amennyiben az ingatlan felkeltette érdeklődését, további információkért és megtekintéssel kapcsolatban forduljon hozzánk bizalommal.
További adatok
Telekterület: 1 315 m2
Kert mérete: -
Erkély mérete: -
Felszereltség: -
Parkolás: garázs
Kilátás: -
Egyéb extrák:  
Hirdető adatai
Hirdető neve: otpip.hu - Eger Törvényház utca 4 - OTP Ingatlanpont Iroda
Kapcsolattartó: Juhász Tamás
Hirdető telefonszáma: +36-30-354-3850
Honlap: -
 
Üzenetet küldhet a hirdetőnek, árajánlatot tehet az ingatlanra:
Az Ön neve:
Az Ön e-mail címe:
Üzenet: