Ingatlan Televízió
Ingatlan Televízió
további hirdetések
adatlap bezárása

Eger 
 

Hivatkozási szám: 5844985
Ingatlan adatai
Irányár: 29 900 000 Ft
Típus: telek
Kategória: eladó
Alapterület: -
Fűtés: -
Állapota: -
Szobák száma: -
Építés éve: -
Szintek száma: -
Részletes leírás
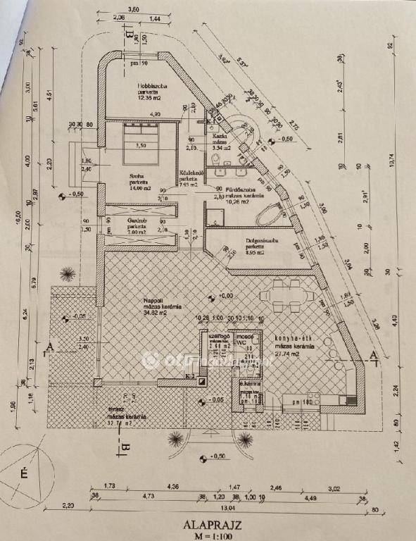
Egerben eladásra kínálunk egy építkezésre kiválóan alkalmas 753 m2-es telket a csendes és zöldövezeti Pásztorvölgyben. Az ingatlan 30%-ban beépíthető, a közművek a telekhatáron rendelkezésre állnak, így az építkezés gördülékenyen megkezdhető.

A telek családi házas környezetben, egy nyugodt, kis forgalmú téren, zsákutcában található, mely két irányból is megközelíthető. A területet hátsó kertek veszik körül, ezáltal kellemes, intim hangulatot biztosít.

A telek alkalmas egyszintes vagy földszint + tetőtér kialakítású, szabadon álló családi ház, valamint különálló garázsépület megvalósítására. A tulajdonos rendelkezik egy elfogadott tervvel, amely egy bruttó 158 m2-es földszintes ház és egy 59 m2-es, kétállásos garázs építését foglalja magában. Komoly érdeklődés esetén a tervdokumentáció térítésmentesen átadásra kerülhet.

A telek elhelyezkedése rendkívül előnyös: buszmegálló, élelmiszerbolt, tágas játszótér, valamint a Pásztorvölgyi Általános Iskola és Gimnázium is pár perc sétával elérhető.

Ez az ingatlan tökéletes választás lehet azoknak, akik egy zöld, nyugodt környezetben szeretnének otthont teremteni, miközben fontos számukra a városi infrastruktúra közelsége.

Amennyiben a telek felkeltette érdeklődését, kérem további információkért forduljon hozzánk bizalommal.
További adatok
Telekterület: 753 m2
Kert mérete: -
Erkély mérete: -
Felszereltség: -
Parkolás: -
Kilátás: -
Egyéb extrák:  
Hirdető adatai
Hirdető neve: otpip.hu - Eger Törvényház utca 4 - OTP Ingatlanpont Iroda
Kapcsolattartó: Juhász Tamás
Hirdető telefonszáma: +36-30-354-3850
Honlap: -
 
Üzenetet küldhet a hirdetőnek, árajánlatot tehet az ingatlanra:
Az Ön neve:
Az Ön e-mail címe:
Üzenet: