Ingatlan Televízió
Ingatlan Televízió
további hirdetések
adatlap bezárása

Baja 
Bodorka köz 

Hivatkozási szám: 5845236
Ingatlan adatai
Irányár: 89 999 999 Ft
Típus: lakás (tégla)
Kategória: eladó
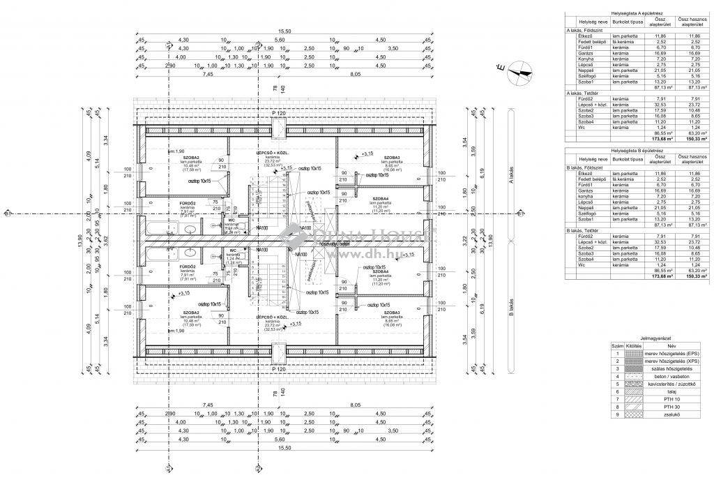
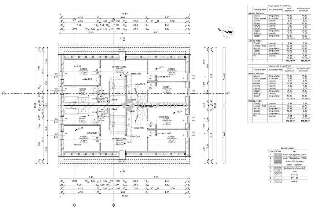
Alapterület: 150 m2
Fűtés: -
Állapota: új
Szobák száma: 5
Építés éve: 2024
Szintek száma: 1
Részletes leírás
Eladó új építésű, 2 lakásos ikerházban 150 m2-es lakás garázzsal, 20 m2-es terasszal, saját udvarral.

Nyugodt, csendes, új házas környezetben helyezkedik el, kiváló infrastruktúrával ellátott, jól megközelíthető.

Az ingatlan jelenleg 70%-os készültségi fokon áll, így a belső kialakítás még az Ön egyedi igényei szerint alakítható.

A házban két különálló, egyenként 150 m2-es lakás kapott helyet, saját terasszal és ~250 m2-es saját udvarral.

Egyedi kérések teljesíthetőek, akár medence vagy napelemes rendszer kialakítására is van lehetőség!

Főbb jellemzők:
- Monolit vasbeton sávalapozás, monolit vasbeton talpgerenda, vasalt aljzat
- POROTHERM 30 N+F falazat
- Lakások között 2x30 cm falazat
- 15 cm-es Baumit külső EPS hőszigetelés
- Baumit nemes vakolat
10 cm-es Austrotherm padló szigetelés
- 25 cm-es Rockwool födém szigetelés
- 25 cm-es Rockwool tető szigetelés
- Terran Antracit beton cserép
- Elektromos szekcionált garázskapu
- H-tarifás villany
- Viessmann levegő/víz hőszivattyús fűtésrendszer Rehau padlófűtéssel
- Gealan 3 rétegű külső nyílászárók
- Fa belső ajtók
- Páratartalom és CO2- szint alapján automatikusan működő légcserélő
- Esővízgyűjtő tárolók

Irányár: csupán 650.000 Ft/m2!

Kiváló választás két generáció számára vagy befektetési célra is!

CSOK Pluszra alkalmas ingatlanok, így fiatal családok számára különösen ideális lehetőség.

A megadott vételár kulcsrakész állapotra értendő! Az egyedi ügyféligények pluszban fizetendőek.

Érdeklődés esetén keressen bizalommal, nézzük meg együtt!

Referencia szám: HZ070818
További adatok
Telekterület: 850 m2
Kert mérete: -
Erkély mérete: 20 m2
Felszereltség: -
Parkolás: -
Kilátás: -
Egyéb extrák:  
Hirdető adatai
Hirdető neve: dh.hu - Szeged, Mérey utca
Kapcsolattartó: Polák Norman
Hirdető telefonszáma: +36703266720
Honlap: -
 
Üzenetet küldhet a hirdetőnek, árajánlatot tehet az ingatlanra:
Az Ön neve:
Az Ön e-mail címe:
Üzenet: