Ingatlan Televízió
Ingatlan Televízió
további hirdetések
adatlap bezárása

Szeged 
 

Hivatkozási szám: 5845508
Ingatlan adatai
Irányár: 71 750 000 Ft
Típus: lakás (panel)
Kategória: eladó
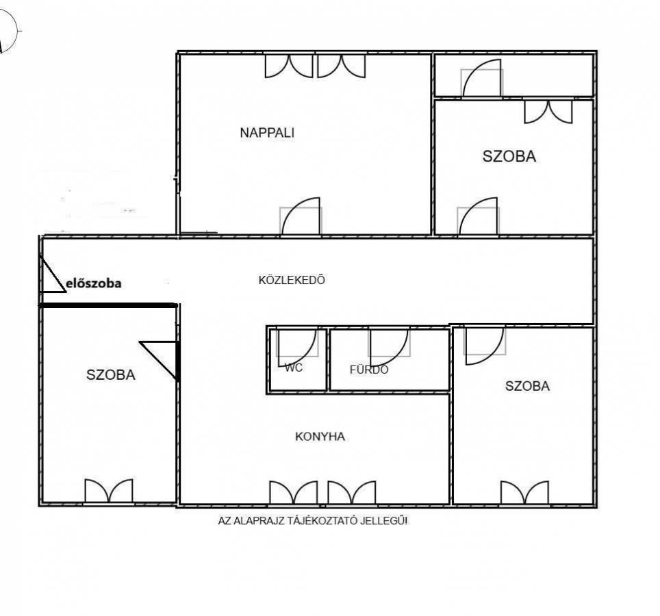
Alapterület: 72 m2
Fűtés: távfűtés
Állapota: felújított
Szobák száma: 2+2
Építés éve: 1989
Szintek száma: 1
Részletes leírás
Szeged, Rókus városrész, Makkoserdő sornál lévő, magasföldszinti 2+2, felújított, 72 nm panel lakás eladó! A lakás elhelyezkedése kiváló, közel a központhoz, jó közlekedéssel, de mégis csendes utcában helyezkedik el. Az épület előtt park van, ami még otthonosabbá teszi a környéket. A lakás hőszigetelt, minden szobában beépített minőségi bútorokkal, felújított konyha, beépített bútorzattal, loggiás, kényelmes otthon, alacsony rezsivel. Az otthon melegét távfűtés biztosítja, azonban hűtő -fűtő klíma is bevezetésre került. A lakás minden égtájról nyitott, ezért világos lakás, körbejárja a nap. Azonban nem meleg, jó a szellőzése, alacsony rezsivel.
Amennyiben egy szép és kényelmes lakást keres, megtalálta! Hívjon most, és megbeszéljük a továbbiakat. Amennyiben meglévő ingatlanát még el kell adnia, abban is segítünk.
Az ingatlan megvásárlásához kedvező hitel is igényelhető, melynek intézéséhez szakszerű segítség áll a leendő vásárló rendelkezésére.
További adatok
Telekterület: -
Kert mérete: -
Erkély mérete: -
Felszereltség: -
Parkolás: -
Kilátás: -
Egyéb extrák:  
Hirdető adatai
Hirdető neve: otpip.hu - Szeged Széchenyi tér 6 - OTP Ingatlanpont Iroda
Kapcsolattartó: Kalmár Edit Virág
Hirdető telefonszáma: +36-70-942-4398
Honlap: -
 
Üzenetet küldhet a hirdetőnek, árajánlatot tehet az ingatlanra:
Az Ön neve:
Az Ön e-mail címe:
Üzenet: