Ingatlan Televízió
Ingatlan Televízió
további hirdetések
adatlap bezárása

Mosonmagyaróvár 
 

Hivatkozási szám: 5845622
Ingatlan adatai
Irányár: 62 500 000 Ft
Típus: lakás (tégla)
Kategória: eladó
Alapterület: 100 m2
Fűtés: gáz (konvektor)
Állapota: felújított
Szobák száma: 3
Építés éve: 1971
Szintek száma: 1
Részletes leírás
Befektetők, felújítók, otthonteremtők figyelem!

Eladásra kínálunk Mosonmagyaróvár kedvelt, magyaróvári részén, egy csendes, átmenő forgalomtól mentes utcában egy 1971-ben épült, stabil téglaszerkezetű ikerházat. Az ingatlan egy 688 m²-es telken fekszik.

A ház szerkezetileg megfelelő állapotú, jelenleg is lakható, de esztétikailag és gépészetileg az új tulajdonos ízlése szerint modernizálható. Ez egy kiváló üres vászon ahhoz, hogy saját elképzelései szerint alakítsa ki álmai otthonát.

A Ház Részletei:

Alapterület: 100 m²
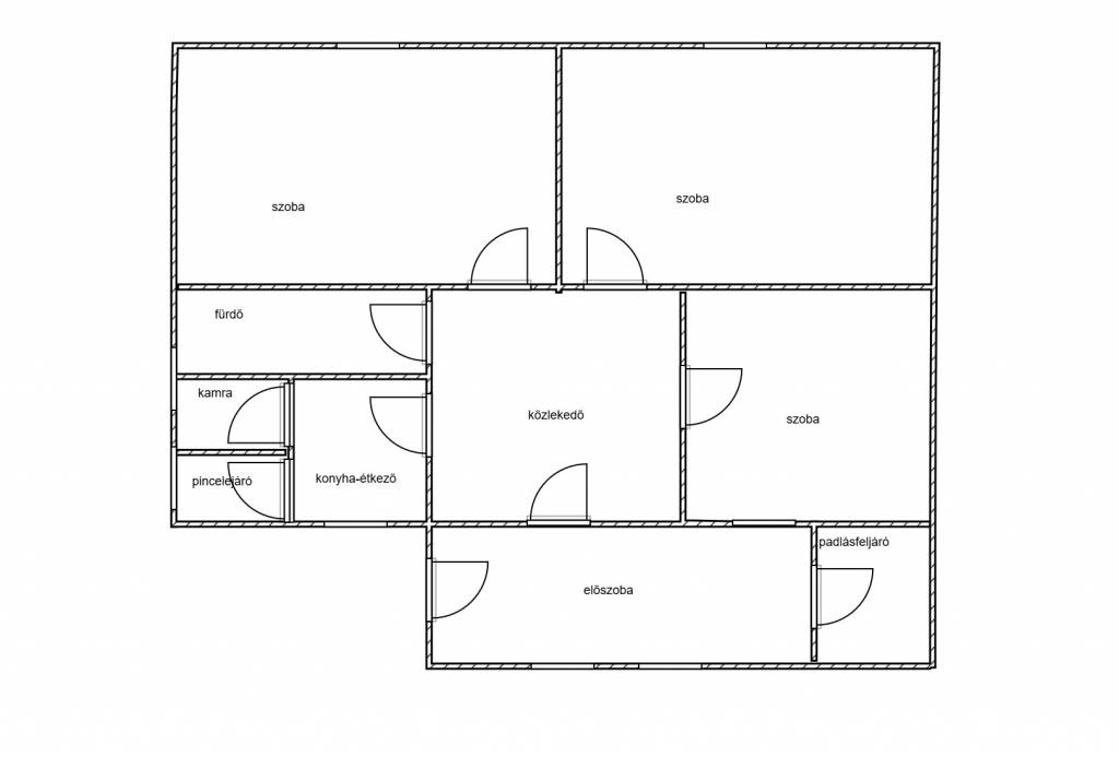
Elrendezés: Praktikus és tágas. Az alaprajz szerint a házban 3 külön nyíló, tágas szoba, egy közlekedő (vagy étkező), konyha-étkező, kamra, és egy kádas fürdőszoba egyben a WC-vel található.
További Helyiségek: A házba egy világos, beépített előszobán (veranda) keresztül léphetünk be. A konyha alatt pincelejáró, a ház végében pedig padlásfeljáró biztosítja a tárolást.
Műszaki és Hasznossági Információk:

Szerkezet: Stabil, 1971-es tégla építés, cserép tetőfedéssel.
Nyílászárók: A költséges ablakcsere már megtörtént! Az ingatlan modern, műanyag nyílászárókkal van felszerelve.
Fűtés: Kettős fűtési rendszer! A meleget gázkonvektorok és 2 db, alternatív fűtést biztosító cserépkályha adja.
Közművek: Az ingatlan összkomfortos. Víz, csatorna, gáz bevezetve. A meleg vizet villanybojler készíti. Az elektromos hálózat 3x20A-re van bővítve.
Elhelyezkedés és Potenciál:

Az ingatlan értéke az elhelyezkedésében rejlik. Csendes, családi házas övezetben található, ahonnan gyalogosan is pár percre elérhető minden fontos intézmény: bolt, iskola, óvoda és a kórház.

Tökéletes választás családosoknak, akik egy jól alakítható, stabil alapot keresnek; fiataloknak első otthonnak; vagy befektetőknek felújítás és továbbértékesítés, illetve bérbeadás céljából.

Ne hagyja ki ezt a remek alapot kínáló lehetőséget!

Referencia szám: 3331-ITV
További adatok
Telekterület: 688 m2
Kert mérete: -
Erkély mérete: -
Felszereltség: -
Parkolás: garázs
Kilátás: -
Egyéb extrák:  
Hirdető adatai
Hirdető neve: movinghome.hu - Mov-Ing Home
Kapcsolattartó: Dömötör Attila
Hirdető telefonszáma: +36308505560
Honlap: -
 
Üzenetet küldhet a hirdetőnek, árajánlatot tehet az ingatlanra:
Az Ön neve:
Az Ön e-mail címe:
Üzenet: