Ingatlan Televízió
Ingatlan Televízió
további hirdetések
adatlap bezárása

Siófok 
 

Hivatkozási szám: 5845814
Ingatlan adatai
Irányár: 70 900 000 Ft
Típus: lakás (tégla)
Kategória: eladó
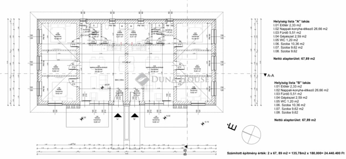
Alapterület: 68 m2
Fűtés: -
Állapota: új
Szobák száma: 4
Építés éve: 2025
Szintek száma: 1
Részletes leírás
Siófokon a Rét utca közelében kínálok megvételre egy ÚJÉPíTÉSŰ, Nappali + 3 szobás, HŐSZIVATTYÚS, utcafronthoz képest hátsó Ikerházfelet, 800 méterre a Balatontól


Az ingatlan főbb jellemzői:
- Építés éve: 2025
- Hasznos alapterület: 68 nm + 9,8 nm terasz
- Telek mérete: 217 nm + 80 nm közös használatú szorgalmi út
- A Telek első felében egy ikerház, mögötte pedig egy önálló Családi ház található

Elrendezése:
- Amerikai konyhás Nappali+ Étkező
- 3 db Szoba
- Előtér
- Fürdőszoba
- Wc
- Gépház
- Terasz

Műszaki tartalom:

- Szerkezete: Porotherm K-30 tégla
- Homlokzat 15 cm-es grafit szigeteléssel, lábazat 5 cm-es szigeteléssel készül
- Belső válaszfalak Porotherm 10 cm-es tégla
- Födémszerkezet: Fafödém, 25 cm vastag üveggyapot szigeteléssel
- Antracit színű cserépfedés
- Az épülethez tartozik padlásfeljáró és tetőkibúvó
- Fehér színű nyílászárók, háromrétegű üvegezéssel szerelt 5 légkamrás
- Fűtése hőszivattyú, padlófűtéses hőleadással, a padlón 10 cm-es lépésálló hőszigetelés készül
- Melegvíz ellátása villanybojlerrel történik
- Napelemhez, riasztó-és kamerarendszerhez a szükséges vezetékezés előkészítésre kerül ( a berendezéseket a vételár nem tartalmazza)

Belső burkolatok és szaniterek:
- Melegburkolat 4500 Ft/nm
- Hidegburkolat 5000 Ft/nm-ig válaszhatók

A telek minden irányból körbekerített, a hátsó telekhatáron 2 m magas betonelemes kerítés, az oldalsó részeken drótfonatos kerítés lesz kialakítva kerti szegéllyel, az utcafronti zsalukő kerítés 1,5 m magas oszlopokkal készül.

Az épület körül 50 cm szélességben szegélykő készül, a kocsibeálló és a szorgalmi utak is fehér dolomittal lesznek feltöltve.

A járdák viacolor térkő burkolattal épülnek 6000 Ft/nm értékhatárig.

A tereprendezés része a kivitelezésnek, termőréteg kialakításával és füvesítésre előkészített állapotban ( a fűmag vetése a Vevő feladata lesz)

Az energetikai tanúsítvány készítése folyamatban van, amint rendelkezésre áll, úgy azzal a hirdetés frissítésre kerül.


Amennyiben az ingatlan felkeltette az érdeklődését, keressen bizalommal a hét bármely napján!
Jöjjön el, nézze meg, szeressen bele, legyen Ön a a következő lakója!

Érd: Kulcsár Imola, tel: +36/20/240 4146, e-mail: kulcsar.imola@dh.hu

Az ajánlatom megfelelne az elvárásainak, de nem rendelkezik a kiválasztott ingatlan teljes vételárával!?
Hitelre történő vásárlás esetén Bankfüggetlen Credipass Pénzügyi Szakértőnk kötelezettség nélkül megtalálja az Ön számára legkedvezőbb megoldást! A tanácsadás ingyenes!

Referencia szám: HZ041237
További adatok
Telekterület: 297 m2
Kert mérete: -
Erkély mérete: 10 m2
Felszereltség: -
Parkolás: lakáshoz van kültéri parkoló
Kilátás: -
Egyéb extrák:  
Hirdető adatai
Hirdető neve: dh.hu - Villa Gyömrő
Kapcsolattartó: Kulcsár Imola
Hirdető telefonszáma: +36202404146
Honlap: -
 
Üzenetet küldhet a hirdetőnek, árajánlatot tehet az ingatlanra:
Az Ön neve:
Az Ön e-mail címe:
Üzenet: