Ingatlan Televízió
Ingatlan Televízió
további hirdetések
adatlap bezárása

Budapest, XX.kerület 
 

Hivatkozási szám: 5845881
Ingatlan adatai
Irányár: 56 300 000 Ft
Típus: lakás (tégla)
Kategória: eladó
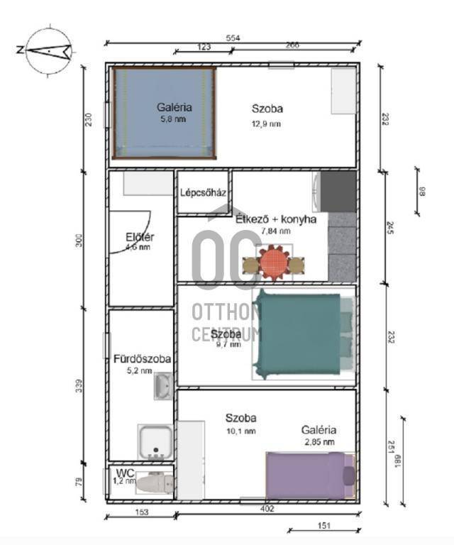
Alapterület: 66 m2
Fűtés: gáz (cirko)
Állapota: felújított
Szobák száma: 3
Építés éve: 1940
Szintek száma: 1
Részletes leírás
Amennyiben az adatok, fotók felkeltették érdeklődését, akkor várom szeretettel egy megtekintésre.

Még néhány fontos információ:
- A fűtést gázcirkó biztosítja, amit 2019 novemberében raktak fel. Hatékony és gazdaságos megoldást kínál a hidegebb hónapokban.
- A ház vegyes falazatú (kő és tömör tégla), melynek köszönhetően az otthon melege és hangulata minden évszakban megmarad.
- A belső felújítás 2019-ben megkezdődött.

Mit is jelent ez:
- 3 fázisú villanyhálozatot építettek ki
- a kisebbik szobában galéria hozzáépìtés készült 2024-ben
- a nagyobbikban gipszkarton elválasztòfal került kialakításra, ezzel létrehozva külön hálószobát a nappali mellé.
- a fürdőszobában sötétszürke greslap került lehelyezésre, az oldalfalak viszont újragondolàsra vàrnak.
- a fürdőszoba kényelmét kàdas zuhanykabin biztosítja, amely igény esetén elbonthatò.

A házhoz tartozó kis telek remek helyszínt biztosít a kertészkedésre vagy akár egy kellemes nyári esti baráti összejövetel helyszínéűl.
A hálószoba ablaka az udvarra szegeződik, garantálva ezzel a nyugalmas és zavartalan környezetet az egyébként is csendes mellékutcában.

OSZTOTT közös tulajdonú az ingatlan, ezért természetesen ügyvédi használati megosztással rendelkezik. Így jogilag tiszta és hitel is felvehető rá.
A birtokbaadásra az eladó 3-4 hónapot kérni fog, így ha ez is megfelelő, kérem hívjon.

Az ingatlan a felező portfólió részét képezi.
Részletek: https://www.oc.hu/felezocsomag

Ez az ingatlan a Felező csomag megbízási portfólióhoz tartozik. Részletek az Otthon Centrum weboldalán.
További adatok
Telekterület: 90 m2
Kert mérete: -
Erkély mérete: -
Felszereltség: -
Parkolás: -
Kilátás: -
Egyéb extrák:  
Hirdető adatai
Hirdető neve: oc.hu - XX. kerület - Török Flóris utca
Kapcsolattartó: Váradi Márton
Hirdető telefonszáma: +36704657036
Honlap: -
 
Üzenetet küldhet a hirdetőnek, árajánlatot tehet az ingatlanra:
Az Ön neve:
Az Ön e-mail címe:
Üzenet: