Ingatlan Televízió
Ingatlan Televízió
további hirdetések
adatlap bezárása

Ecséd 
 

Hivatkozási szám: 5846402
Ingatlan adatai
Irányár: 25 000 000 Ft
Típus: ház
Kategória: eladó
Alapterület: 65 m2
Fűtés: gáz (konvektor)
Állapota: -
Szobák száma: 3
Építés éve: 1958
Szintek száma: -
Részletes leírás
Ecséd szívében, a csendes utcában vár rád egy igazán különleges lakóingatlan, amely tökéletes választás fiatal felnőttek számára, akik otthont keresnek vagy befektetési lehetőséget szeretnének találni. Ez a használt ingatlan 65 négyzetméteren terül el, és egy 1127 négyzetméteres telken helyezkedik el, ami bőséges lehetőséget biztosít a saját elképzeléseid megvalósítására. A ház jó állapotú, így azonnal költözhető, és a gázkonvektoros fűtésnek köszönhetően a téli hónapokban is kellemes meleg vár rád.

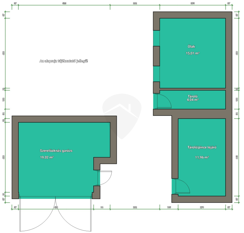
A lakásban két tágas szoba található, amelyek világosak és barátságosak. Kialakítható egy hangulatos nappali és étkező. A kerti tároló pedig praktikus megoldást kínál a kertrendezéshez szükséges eszközök tárolására, így mindig rendben tarthatod a környezetedet. A 20 m2-es szerelőaknás garázsban akár még autószerelés is megoldható.

Extrák:
-új nyílászárók
-új elektromos vezeték
-parkettás szobák
-gyűrűs kút
-19 m2-es pince
-ólak és tárolók

A környék csendes és biztonságos, ami ideális helyszín a nyugodt életvitelhez. Ecséd közlekedése kiváló, hiszen a közeli buszmegállóból könnyen elérhetők a nagyobb városok,(Hatvan,Gyöngyös) így a napi ingázás sem jelent problémát. A közeli bolt és egyéb szolgáltatások mindössze pár perc sétára találhatók, így minden szükséges kényelem a közelben elérhető.

Ez az ingatlan tehermentes, így gyorsan és problémamentesen megvásárolható. Ne hagyd ki ezt a remek lehetőséget, hogy egy igazán különleges otthonra lelj Ecséden!

Ha bármilyen kérdésed lenne az ingatlannal kapcsolatban, vagy szeretnéd megtekinteni, bátran keresd meg a megadott elérhetőségek egyikén. Az ingatlanpiac folyamatosan változik, ezért érdemes minél előbb lépni. Ne habozz, hiszen ez a lehetőség nem tart örökké!
További adatok
Telekterület: 1 127 m2
Kert mérete: 1 127 m2
Erkély mérete: 6 m2
Felszereltség: -
Parkolás: -
Kilátás: panorámás
Egyéb extrák:  
Hirdető adatai
Hirdető neve: Ingatlanmentor powered by Rock Home
Kapcsolattartó: Horváth Tibor
Hirdető telefonszáma: +36 70 467 6871
Honlap: -
 
Üzenetet küldhet a hirdetőnek, árajánlatot tehet az ingatlanra:
Az Ön neve:
Az Ön e-mail címe:
Üzenet: