Ingatlan Televízió
Ingatlan Televízió
további hirdetések
adatlap bezárása

Sopron 
 

Hivatkozási szám: 5846537
Ingatlan adatai
Irányár: 230 000 Ft
Típus: kereskedelmi/ipari ingatlan
Kategória: kiadó
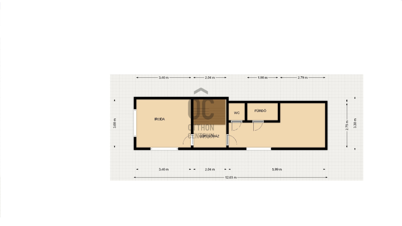
Alapterület: 140 m2
Fűtés: -
Állapota: -
Szobák száma: -
Építés éve: -
Szintek száma: -
Részletes leírás
Kereskedelmi vállalkozások számára kínálunk bérbeadásra egy kiemelkedő ingatlant Sopron szívében, az ÉSZAKNYUGATI iparterületen, amely ideális választás lehet kiskereskedelmi tevékenységek számára, bemutatóteremnek, vagy raktárnak.
Az ingatlan alapterülete 140 négyzetméter, és jó állapotban várja új bérlőjét.
-Ingyenes parkolási lehetőség.
-Kialakult kereskedelmi és szolgáltató környezet.

Földszinten: -Csarnok, Irodahelyiség
Emeleten: - Irodahelyiség, Wc,-zuhanyozó

Egyedi mérőkkel felszerelt.
-Gáz, -Víz, -Villany
Fűtése gáz-cirkó vagy klímával is megoldható.

Bérleti díj 230.000 FT / hó + rezsi +1 havi kaució

Az ingatlan közvetlen közelében található közlekedési csomópont (M 85 ) lehetővé teszi a kitűnő közlekedést a vásárlók könnyen elérhetik üzletét. A jól megválasztott helyszín és az ingatlan adottságai lehetővé teszik, hogy bármilyen kreatív elképzelést megvalósítson, legyen szó bolt nyitásáról vagy más üzleti tevékenységről.

Amennyiben érdekli ez a kiváló lehetőség, ne habozzon kapcsolatba lépni velünk! Szívesen válaszolunk kérdéseire, és segítünk Önnek abban, hogy megtalálja a legjobb megoldást üzleti céljainak megvalósításához.
További adatok
Telekterület: -
Kert mérete: -
Erkély mérete: -
Felszereltség: -
Parkolás: -
Kilátás: -
Egyéb extrák:  
Hirdető adatai
Hirdető neve: Otthon Centrum
Kapcsolattartó: Füzi-Májer Zsuzsanna
Hirdető telefonszáma: +36 70 388 6056
Honlap: -
 
Üzenetet küldhet a hirdetőnek, árajánlatot tehet az ingatlanra:
Az Ön neve:
Az Ön e-mail címe:
Üzenet: