Ingatlan Televízió
Ingatlan Televízió
további hirdetések
adatlap bezárása

Komló 
 

Hivatkozási szám: 5847732
Ingatlan adatai
Irányár: 20 300 000 Ft
Típus: lakás (tégla)
Kategória: eladó
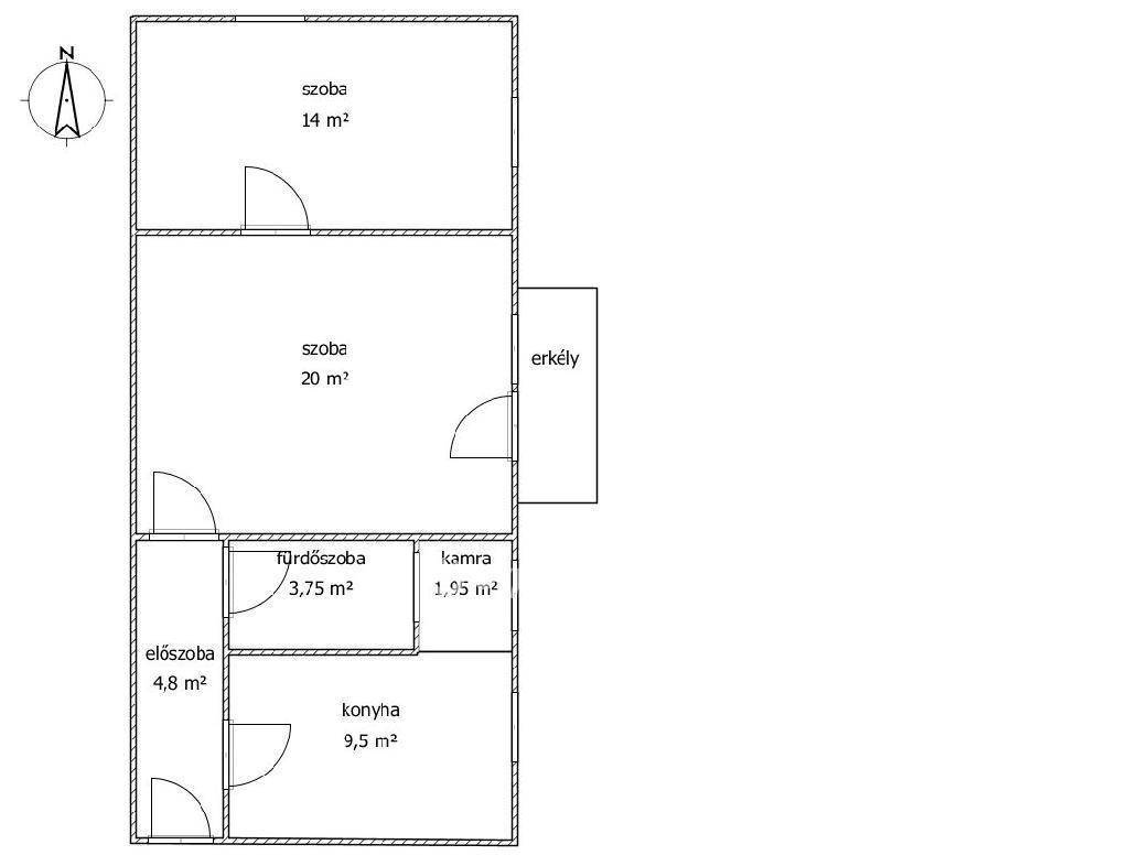
Alapterület: 50 m2
Fűtés: elektromos
Állapota: felújított
Szobák száma: 2
Építés éve: 1960
Szintek száma: 1
Részletes leírás
2 szobás 2. emeleti lakás eladó Komlón a Kökönyösben a Vájáriskola utcában.
2 emeletes tégla ház legfelső emeletén van. Csendes környezetben, kellemes szomszédokkal. Átlagos állapotú az összes nyílászárót műanyagra cserélték, redőnnyel. A fűtés gázkészülékkel, hőtárolós kályhával, és cserépkályhával is megoldható. Keleti irányba néz az erkélye utcai kilátással. Parkolni a ház előtt lehet, mindig van szabad hely. Az alagsorban tároló tartozik hozzá, ahová a babakocsit, vagy a kerékpárokat be lehet rakni. Játszótér, óvoda stb. van a közelben. SART 3 %-os hitelre is alkalmas.
Referenciaszám: M317260

20300000 Ft

Referencia szám: M317260
További adatok
Telekterület: -
Kert mérete: -
Erkély mérete: -
Felszereltség: -
Parkolás: utcán, közterületen
Kilátás: -
Egyéb extrák:  
Hirdető adatai
Hirdető neve: otpip.hu - Pécs Rákóczi út 19 - OTP Ingatlanpont Iroda
Kapcsolattartó: Vincze László György
Hirdető telefonszáma: +36-20-938-4141
Honlap: -
 
Üzenetet küldhet a hirdetőnek, árajánlatot tehet az ingatlanra:
Az Ön neve:
Az Ön e-mail címe:
Üzenet: