Ingatlan Televízió
Ingatlan Televízió
további hirdetések
adatlap bezárása

Balatonföldvár 
 

Hivatkozási szám: 5847738
Ingatlan adatai
Irányár: 188 000 000 Ft
Típus: lakás (tégla)
Kategória: eladó
Alapterület: 166 m2
Fűtés: gáz (cirko)
Állapota: felújított
Szobák száma: 6+1
Építés éve: 1970
Szintek száma: 2
Részletes leírás
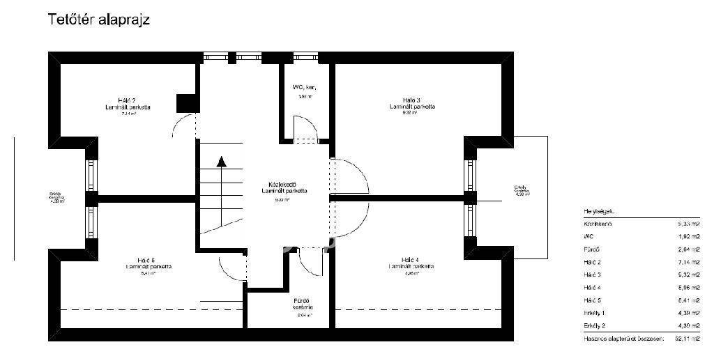
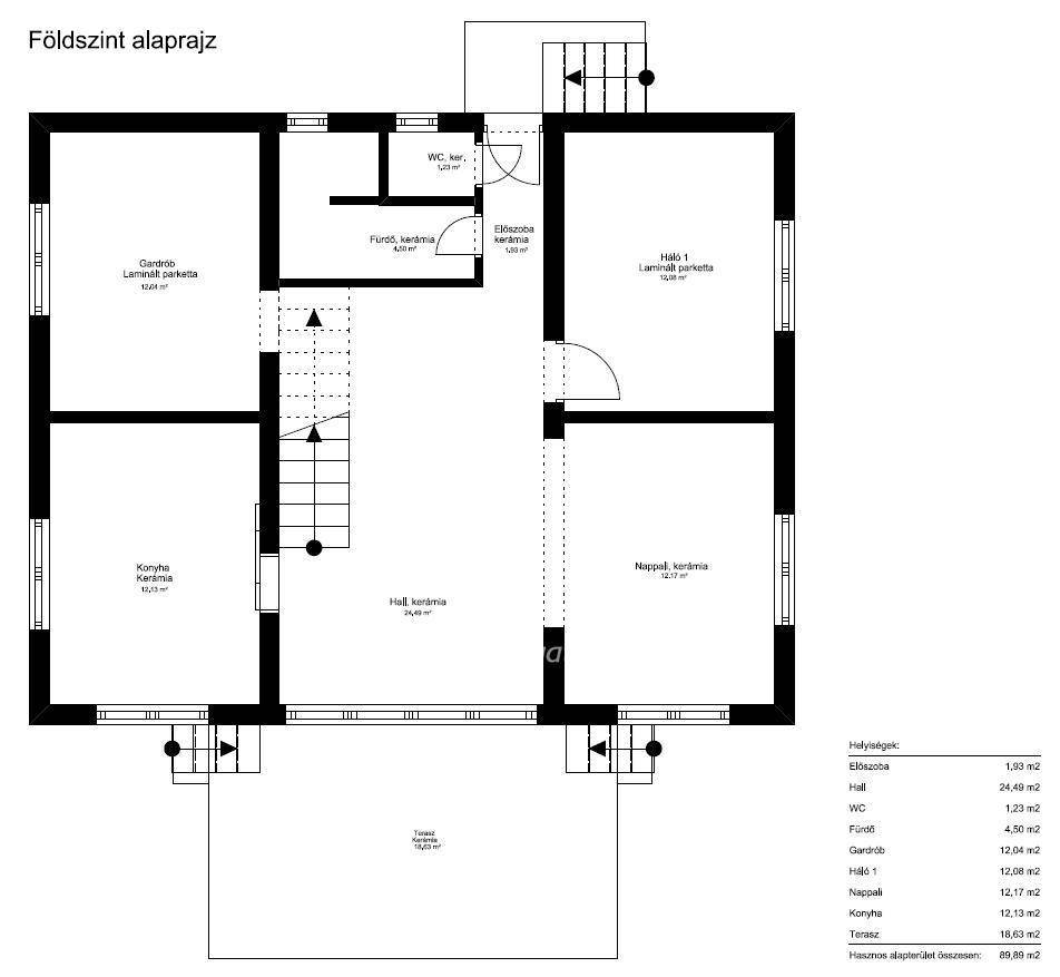
Balatonföldvár központjában kiváló állapotú, igényesen átalakított, műszakilag teljesen felújított, minden igényt kielégítő családi ház eladó. A sík, összközműves telek mérete 899 nm. A szabadtéri időtöltéshez nagy füves terület áll rendelkezésre, de a hamisciprus sövény segít megőrizni a kert privát szféráját. A ház kétszintes, tetőtér beépítéssel. A földszinten található a gépesített étkezős konyha, mely tavaly teljes körű felújításon esett át, továbbá a nappali, 2 hálószoba (ezek közül az egyik jelenleg gardróbként funkcionál), WC és zuhanyozós fürdőszoba. A konyha és a nappali közötti közösségi tér faltól falig erkélyajtóval kapcsolódik a tágas, fedett teraszhoz. A beépített tetőtérben található további 4 hálószoba erkélykapcsolattal, zuhanyozós fürdő és külön WC. A ház összes hasznos alapterülete 142 nm. A ház mögött, önálló felépítményben kapott helyet a garázs/tároló és a gépészeti helyiség kazánnal, melegvíz tartállyal, és egy komplett zuhanyozós fürdőszobával. A ház használati meleg víz ellátása, és a földszint radiátoros fűtése kazánról történik, a tetőtér kellemes hőmérsékletéről minden szobában hűtő-fűtő mono split klíma gondoskodik. A telek hátsó részében egy további fedett terasz, étkező, tároló áll rendelkezésre. 2016-ban a ház teljes felújítása során háromrétegű üvegezésű, hőszigetelt műanyag nyílászárók kerültek beépítésre, a földszinten elektromos redőnyökkel és szúnyoghálóval ellátva. A külső párkányok fekete gránitból készültek. A homlokzat 15 cm hőszigetelést kapott. A kert locsolását öntözőrendszer biztosítja. Minden helyiségben igényes, minőségi anyagok kerültek felhasználásra, a ház kifogástalan állapotú, azonnal költözhető. Kiváló választás - akár nagyobb családoknak - állandó lakóhelyként vagy nyaralóként egyaránt. A földvári Keleti Strand 350 m-re található, a szántódi ALDI, Rossmann, Spar, dm és további üzletek 1 km-en belül. Keressen bizalommal, és tekintse meg ezt a nagyszerű családi házat!
Az OTP Ingatlanpont, mint egyetlen közvetlen banki hátterű ingatlanközvetítő társaság teljes körű ügyintézéssel áll az eladók és a vevők rendelkezésére! A kínálatunkból választott ingatlan finanszírozásához minősített fogyasztóbarát, piaci és kedvezményes hitel- és lízingkonstrukciókat kínálunk (lakásvásárlási hitel, CSOK plusz, szabad felhasználású hitel, babaváró hitel, céges hitelek, pályázatok). Az adásvételi szerződés megkötéséhez igény szerint megbízható ügyvédi közreműködést biztosítunk, és segítséget nyújtunk az adásvételhez kapcsolódó egyéb ügyek intézéséhez. Ha az új ingatlana megvásárlásához a jelenlegi ingatlanát el kell adnia, abban is szívesen segítünk.

Referencia szám: M316514-ITV
További adatok
Telekterület: 899 m2
Kert mérete: -
Erkély mérete: 27 m2
Felszereltség: -
Parkolás: lakáshoz van kültéri parkoló
Kilátás: -
Egyéb extrák:  
Hirdető adatai
Hirdető neve: otpip.hu - Budapest XIII. kerület Lehel utca 50 - OTP Ingatlanpont Iroda
Kapcsolattartó: Takács Zsuzsanna
Hirdető telefonszáma: +36304953819
Honlap: -
 
Üzenetet küldhet a hirdetőnek, árajánlatot tehet az ingatlanra:
Az Ön neve:
Az Ön e-mail címe:
Üzenet: