Ingatlan Televízió
Ingatlan Televízió
további hirdetések
adatlap bezárása

Miskolc 
Kis-Hunyad utca 

Hivatkozási szám: 5847755
Ingatlan adatai
Irányár: 53 000 000 Ft
Típus: lakás (panel)
Kategória: eladó
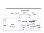
Alapterület: 73 m2
Fűtés: távfűtés
Állapota: felújított
Szobák száma: 3
Építés éve: 1980
Szintek száma: 1
Részletes leírás
KIVÁLÓ LEHETŐSÉG! FELÚJÍTOTT, 3 szobás lakás MISKOLCON, FREKVENTÁLT HELYEN!
Ne keressen tovább, ha egy tökéletes helyen lévő otthonra vágyik!
Miskolcon, a város egyik legjobban megközelíthető, biztonságos és rendezett környékén a Kis-Hunyad utcában eladó egy 73 m2-es, 3 szobás, tágas, napfényes felújított panellakás!
Főbb jellemzői:
Frekventált elhelyezkedés: Minden, amire a mindennapokban szüksége lehet, valóban pár perces sétára található! Pékség, bolt, gyógyszertár, óvodák, iskolák, valamint a villamos- és buszmegállók is könnyedén elérhetőek.
Ideális elhelyezkedés: Magasföldszinti elhelyezkedése miatt kényelmes, lépcsőzés minimális, mégis elkerüli a földszinti hátrányokat.
Műszaki felújítások: A lakás a legfontosabb területeken megújult: a villamos- és vízhálózat teljes cseréje megtörtént, így hosszú távon sem kell a rejtett hibáktól tartania. Műanyag modern nyílászárók és biztonsági bejárati ajtó került beépítésre.
Kényelem és klimatizálás: A nyári hőségben a beépített, modern klíma biztosítja a kellemes hőmérsékletet.
Praktikus kialakítás: A lakás elrendezése kiváló: 3 különnyíló szoba, fürdőszoba, külön WC, előszoba, konyha és egy kamra (mely igény esetén gardróbbá alakítható) áll rendelkezésre.
Beépített erkély: A beépített erkély további hasznos teret biztosít, akár reggelizőhely, akár kuckó funkciót tölt be.
Családbarát környezet: A környék biztonságos, ideális választás gyermekes családoknak.
Ez a lakás tökéletes választás azoknak, akik élvezni szeretnék az otthon kényelmét egy kitűnő lokációval párosítva.
Ne maradjon le róla! Hívjon még ma, és tekintse meg személyesen miskolci álomotthonát!
A lakás csak rajtunk keresztül és nálunk vásárolható meg! Igénybe vehető Otthon Start hitel, babaváró, jelzáloghitel, ennek ügyintézésében pénzügyesünk segít Vevőinknek!

Referencia szám: M316291
További adatok
Telekterület: -
Kert mérete: -
Erkély mérete: -
Felszereltség: -
Parkolás: -
Kilátás: -
Egyéb extrák:  
Hirdető adatai
Hirdető neve: otpip.hu - Miskolc Szemere Bertalan utca 20 - OTP Ingatlanpont Iroda
Kapcsolattartó: Piskóti Tibor Lajos
Hirdető telefonszáma: +36-70-322-2946
Honlap: -
 
Üzenetet küldhet a hirdetőnek, árajánlatot tehet az ingatlanra:
Az Ön neve:
Az Ön e-mail címe:
Üzenet: