Ingatlan Televízió
Ingatlan Televízió
további hirdetések
adatlap bezárása

Szeged 
 

Hivatkozási szám: 5847764
Ingatlan adatai
Irányár: 73 604 000 Ft
Típus: lakás (tégla)
Kategória: eladó
Alapterület: 58 m2
Fűtés: -
Állapota: új
Szobák száma: 2+1
Építés éve: 2025
Szintek száma: 1
Részletes leírás
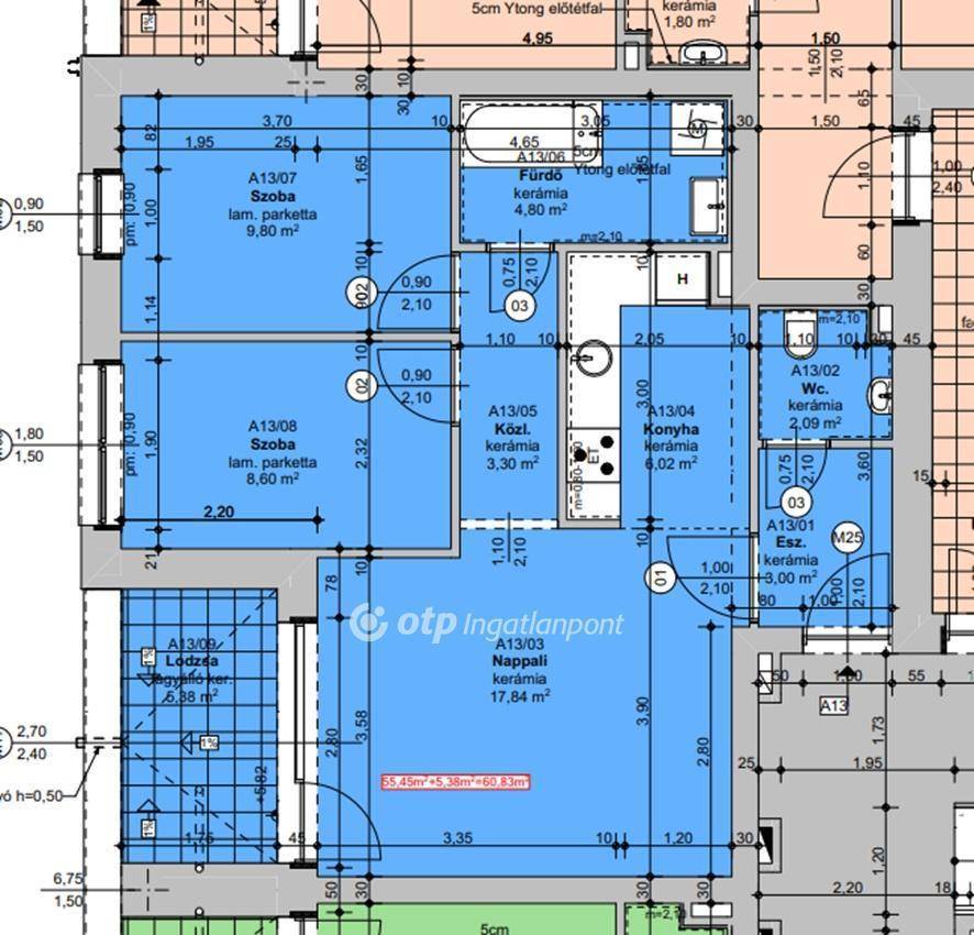
Szeged, újszegedi 58,14 m2-es, 2 + 1 szobás, 2. emeleti, újépítésű téglalakás, tulajdonos-kivitelezőtől, kulcsrakész állapotban eladó. Az átadás tervezett időpontja: 2026.03.30. A lakásban amerikai konyhás nappali, 1 + 1 szoba, fürdőszoba, wc és loggia található. A szobák laminált parketta-, a többi helyiség járólap burkolatot kapnak. Az otthon melegét hőszivattyús fűtés biztosítja. A lakáshoz opcionálisan, udvari beálló, vagy garázs is vásárolható. Tökéletes kertvárosi elhelyezkedése miatt kedvező lehetőség lehet diákoknak, pároknak és befektetőknek, akár rövid-, akár hosszútávú kiadásra egyaránt. Az ingatlan megvásárlásához kedvező hitel is igényelhető, melynek intézéséhez szakszerű segítség áll a leendő vásárló rendelkezésére.

Referencia szám: M317382
További adatok
Telekterület: -
Kert mérete: -
Erkély mérete: -
Felszereltség: -
Parkolás: -
Kilátás: -
Egyéb extrák:  
Hirdető adatai
Hirdető neve: otpip.hu - Szeged Széchenyi tér 6 - OTP Ingatlanpont Iroda
Kapcsolattartó: Puskásné Ember Ninette
Hirdető telefonszáma: +36-30-733-5627
Honlap: -
 
Üzenetet küldhet a hirdetőnek, árajánlatot tehet az ingatlanra:
Az Ön neve:
Az Ön e-mail címe:
Üzenet: