Ingatlan Televízió
Ingatlan Televízió
további hirdetések
adatlap bezárása

Szilvásvárad 
 

Hivatkozási szám: 5847801
Ingatlan adatai
Irányár: 33 000 000 Ft
Típus: ház
Kategória: eladó
Alapterület: 82 m2
Fűtés: gáz (konvektor)
Állapota: felújított
Szobák száma: 2
Építés éve: 1965
Szintek száma: 1
Részletes leírás
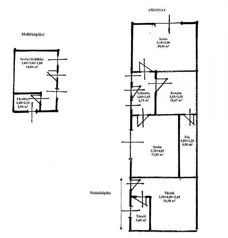
Szilvásvárad egyik csendes, rendezett utcájában eladó egy hangulatos, földszintes családi ház 600 m2-es, gondozott telken. A 82 m2-es ingatlan frissen festett, tiszta és költözhető állapotban várja új tulajdonosát.

A házban két szoba, konyha, fürdőszoba és egy tágas, világos előtér található. Déli tájolása miatt a helyiségek napfényesek és barátságosak. A konyha és az egyik szoba között működő cserépkályha teremti meg az otthon melegét, emellett gázkonvektoros fűtés is biztosított. A tető cserépfedésű, jó állapotú, a nyílászárók korszerű, műanyag kivitelűek. A fürdőszoba alatt egy rejtett pince is található, amely extra lehetőségeket kínál.

Az udvaron fedett pavilon és alatta száraz pince kapott helyet. A kertben egy hivatalosan is nyilvántartott melléképület található, amelyet korábban vendégházként használtak - egy szoba, konyha és fürdőszoba tartozik hozzá, így akár külön lakrésznek is ideális. Az udvaron továbbá egy utcáról megközelíthető, felújítandó, de használható garázs is van, valamint egy hagyományos kemence, ami igazi vidéki hangulatot varázsol.

A környék csendes, igényes és barátságos, a szomszédok rendezettek. Az ingatlan tehermentes, azonnal költözhető, és versenyképes áron kínálja a lehetőséget, hogy Szilvásvárad egyik legszebb részén találja meg új otthonát.


Amennyiben felkeltette érdeklődését az ingatlan, jöjjön el és győződjön meg személyesen is a leírtakról! Ingatlanirodánk ügyvédi háttérrel, CSOK, babaváró hitel, valamint kamatkedvezményes hitel ügyintézésével támogatja ügyfelei ingatlanvásárlását! Kérem érdeklődéskor hivatkozzon az M317150 számra.
Érd: Angyal Tamás József +36 70 344 3132

Referencia szám: M317150
További adatok
Telekterület: 602 m2
Kert mérete: -
Erkély mérete: -
Felszereltség: -
Parkolás: garázs
Kilátás: -
Egyéb extrák:  
Hirdető adatai
Hirdető neve: otpip.hu - Eger Kertész utca 84 - OTP Ingatlanpont Iroda
Kapcsolattartó: Angyal Tamás József
Hirdető telefonszáma: +36703443132
Honlap: -
 
Üzenetet küldhet a hirdetőnek, árajánlatot tehet az ingatlanra:
Az Ön neve:
Az Ön e-mail címe:
Üzenet: