Ingatlan Televízió
Ingatlan Televízió
további hirdetések
adatlap bezárása

Zalaegerszeg 
 

Hivatkozási szám: 5848275
Ingatlan adatai
Irányár: 85 500 000 Ft
Típus: kereskedelmi/ipari ingatlan
Kategória: eladó
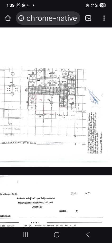
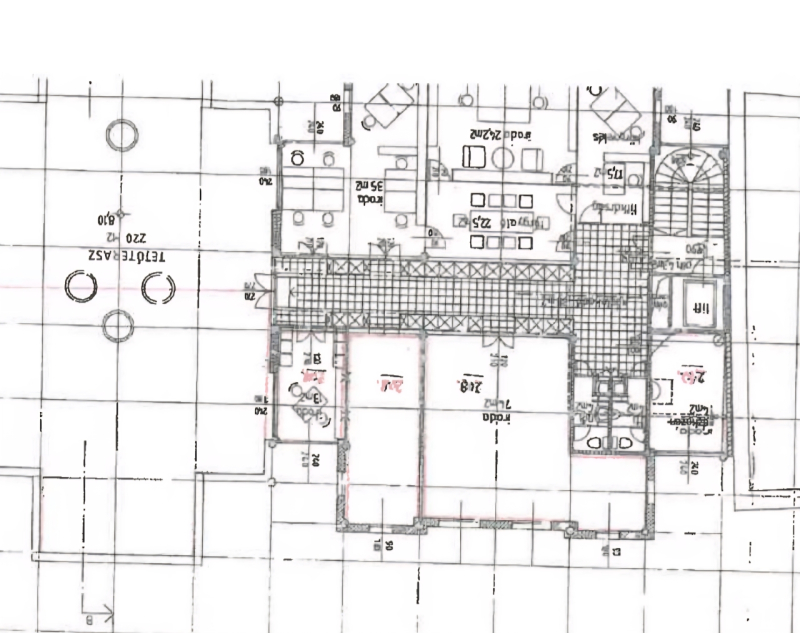
Alapterület: 200 m2
Fűtés: -
Állapota: -
Szobák száma: -
Építés éve: 2000
Szintek száma: -
Részletes leírás
Eladó exkluzív üzlethelyiség Zalaegerszeg belvárosában – prémium lokáció, sokoldalú hasznosítási lehetőség!

Eladásra kínálunk egy 200 m²-es, modern, reprezentatív üzlethelyiséget Zalaegerszeg városközpontjában, amely lifftel is megközelíthető, így az akadálymentessége is biztosított.

Az ingatlan kiemelkedő adottságokkal és infrastruktúrával bír – ideális választás irodai, egészségügyi, sport, pénzügyi vagy szolgáltató tevékenységre, illetve bemutatóteremként is tökéletesen hasznosítható.

Az ingatlan főbb jellemzői:

200 m²-es, emeleti üzlethelyiség, hatalmas üvegportállal, tetőterasz hasz nálattal!

Külön utcai és belső bejárat, lifttel is megközelíthető

Praktikus, funkcionális térfelosztás:

Tágas terek, mobilizálható belső falakkal, egybenyitási lehetőséggel

Jelenleg több különálló, világos irodahelyiség

Nagy méretű terasz

Teakonyha, tároló, több mosdóhelyiség

Hűtő-fűtő klímák

Megerősített, üzembiztos számítástechnikai rendszer külön szerverszobával

Külön mérőórák, önálló közművek

Modern műszaki felszereltség: álmennyezet, riasztó, kamerarendszer, tűz- és füstjelző

Elegáns épület lifttel és lépcsőházzal

Elhelyezkedés és környezet

A helyszín Zalaegerszeg üzleti szívében található, mégis nyugodt, csendes környezetet kínál.
A város infrastruktúrája, parkolási lehetőségei és elérhetősége kiváló – gyalogosan, autóval és tömegközlekedéssel is könnyen megközelíthető.

Hasznosítási lehetőségek:

Egészségügyi, szépészeti központ (orvosi rendelő, fogászat, szépségklinika)

Irodai tevékenység (ügyvédi iroda, könyvelés, tanácsadó cég)

Bemutatóterem / galéria / pénzügyi szolgáltató központ

Befektetésként bérbeadásra is ideális – azonnal birtokba vehető

Irányár: 85,5 millió Ft

Ez az ingatlan a város egyik legjobb elhelyezkedésű, legmagasabb presztízsű üzleti tere – ahol a funkcionalitás és az elegancia találkozik.
További adatok
Telekterület: -
Kert mérete: -
Erkély mérete: -
Felszereltség: -
Parkolás: -
Kilátás: -
Egyéb extrák:  
Hirdető adatai
Hirdető neve: GDN Ingatlanhálózat
Kapcsolattartó: Juhász Judit
Hirdető telefonszáma: +36-70-883-0574
Honlap: -
 
Üzenetet küldhet a hirdetőnek, árajánlatot tehet az ingatlanra:
Az Ön neve:
Az Ön e-mail címe:
Üzenet: