Ingatlan Televízió
Ingatlan Televízió
további hirdetések
adatlap bezárása

Biatorbágy 
 

Hivatkozási szám: 5848571
Ingatlan adatai
Irányár: 195 000 000 Ft
Típus: telek
Kategória: eladó
Alapterület: 1 168 m2
Fűtés: -
Állapota: -
Szobák száma: -
Építés éve: -
Szintek száma: -
Részletes leírás
Biatorbágyon kínálunk építési telket, akár önálló cég központnak,
iroda háznak, egészségügyi vagy oktatási intézménynek, lakásoknak..

Az építési telek (jelenleg még egy bontandó ház van rajta) a Budapesthez közeli, kiemelkedően fejlődő Biatorbágy központi részén helyezkedik el a Városháza, Egészségház, Faluház közvetlen szomszédságában. Megközelítése kiváló mind gépkocsival, mind tömegközlekedési eszközzel, kitűnő fejlesztési potenciál van benne.

Főbb paraméterek:

Telek területe: 1168m2
Építési övezet: VT-5, oldalhatáron álló
Max. szintterületi mutató: 1,50 m2/m²
Legnagyobb beépítettség földszinten: 50%
Legnagyobb beépítettség terepszint alatt: 75%
Min. zöldfelület: 20%
Épület magasság: 8,0m

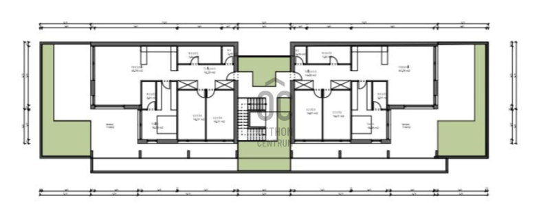
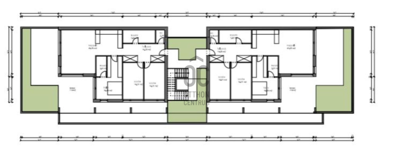
Előzetes koncepcióterv:
Pinceszinten teremgarázs (br. 500m2)
Földszinten üzletek és parkoló (br.500m2)
I.emeleten középen irodák és két lakás (br.500m2)
II. emeleten két nagy tetőteraszos lakás (br.250m2)
Összes br. beépített terület: kb. 1750m2
Jelenleg ez rugalmasan változtatható, akár önálló cég központnak,
iroda háznak, egészségügyi vagy oktatási intézménynek.

- víz telken belül
- áram telken belül
- gáz telken belül
- csatorna utcában

Hívjon nehogy lemaradjon.
További adatok
Telekterület: 1 168 m2
Kert mérete: -
Erkély mérete: -
Felszereltség: -
Parkolás: -
Kilátás: -
Egyéb extrák:  
Hirdető adatai
Hirdető neve: Otthon Centrum
Kapcsolattartó: Csernok Ferenc
Hirdető telefonszáma: +36 70 716 9511
Honlap: -
 
Üzenetet küldhet a hirdetőnek, árajánlatot tehet az ingatlanra:
Az Ön neve:
Az Ön e-mail címe:
Üzenet: