Ingatlan Televízió
Ingatlan Televízió
további hirdetések
adatlap bezárása

Szekszárd 
 

Hivatkozási szám: 5848579
Ingatlan adatai
Irányár: 533 400 000 Ft
Típus: kereskedelmi/ipari ingatlan
Kategória: eladó
Alapterület: 1 671 m2
Fűtés: -
Állapota: -
Szobák száma: -
Építés éve: 1981
Szintek száma: -
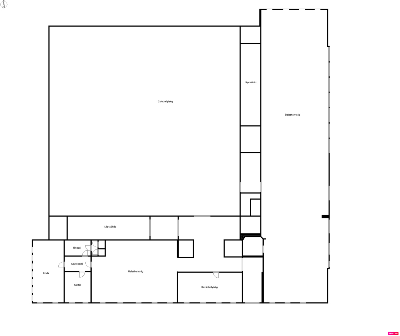
Részletes leírás
Az ingatlan ára 420 000 000 forint + ÁFA.

Az 1671 m2 alapterületű üzlethelyiség 3 részből áll.
- a legnagyobb 840 m2,
- a középső 460 m2,
- a legkisebb 230 m2 alapterületű üzlethelyiség.
- A fennmaradó 141 m2-es rész szociális-, iroda-, lift-, valamint kazán-helyiségből áll.

Az eredetileg bútoráruháznak épült üzlet, ma kínai boltként üzemel Szekszárd belvárosában.
A nagy üzlettér több tevékenysége is alkalmas, az emeletre az áruszállítás teherlifttel megoldott.
Kereskedelmi tevékenységre alkalmas, a fűtése jelenleg hűtő/fűtő klímával megoldott. A gázhálózatról lecsatlakozott a tulajdonos a magas költségek miatt.

Hívjon bátran, ha megtekintené!

Teljes körű pénzügyi megoldások ügyintézése díjmentesen.
Minden élethelyzetre végzünk pénzügyi elemzést - ha vásárolni szeretne, segítünk, hogy ezt a legjobb feltételek mellett tegye; ha eladni szeretné ingatlanát, nézzük meg, hátha érdemes meglévő hitelét átváltani.
Keressen bizalommal, szakértők vagyunk!
További adatok
Telekterület: -
Kert mérete: -
Erkély mérete: -
Felszereltség: -
Parkolás: -
Kilátás: -
Egyéb extrák:  
Hirdető adatai
Hirdető neve: Otthon Centrum
Kapcsolattartó: Bihary Szabolcs
Hirdető telefonszáma: +36 70 716 9966
Honlap: -
 
Üzenetet küldhet a hirdetőnek, árajánlatot tehet az ingatlanra:
Az Ön neve:
Az Ön e-mail címe:
Üzenet: