Ingatlan Televízió
Ingatlan Televízió
további hirdetések
adatlap bezárása

Szikszó 
 

Hivatkozási szám: 5848806
Ingatlan adatai
Irányár: 37 000 000 Ft
Típus: ház
Kategória: eladó
Alapterület: 91 m2
Fűtés: gáz (konvektor)
Állapota: felújított
Szobák száma: 2
Építés éve: 1962
Szintek száma: 1
Részletes leírás
Eladó családi ház Szikszó csendes utcájában, tágas telekkel!
Eladásra kínálok Szikszón, nyugodt, rendezett környezetben, egy 91 m2-es, családi házat, amely egy 1095 m2-es, gondozott telken helyezkedik el. Az ingatlan 1960-ban épült, főfalai vályogból, a mellékfalak téglából készültek.
Ideális választás családoknak vagy pároknak, akik csendes, biztonságos lakókörnyezetben keresnek otthont.
Az évek során a ház folyamatos karbantartást kapott, több fontos felújítás is megtörtént: műanyag, hőszigetelt nyílászárók, vízvezeték cseréje, villanyvezetékek részben felújítva, tetőszerkezet részben felújítva,30 cm vastag üveggyapot födémszigetelés, ami jó hőmegtartást biztosít.
A fűtést gázkonvektorok, a melegvizet villanybojler biztosítja, így a fenntartási költségek kedvezőek.
Helyiségek és burkolatok:
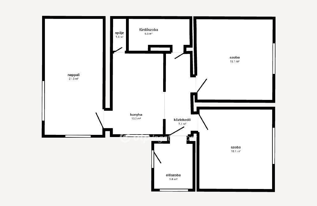
A ház elrendezése praktikus és tágas: nappali + étkező ,konyha, két hálószoba, fürdőszoba és WC egyben, előszoba. A szobákban laminált padló, a többi helyiségben járólap található.
A nappali folytatásában terasz kialakítása is lehetséges, és a filagória alapja már elkészült, így a kert további kényelmi funkciókkal könnyen bővíthető.
Telek és környezet:
A 1095 m2-es telek rendezett, jól kihasználható, többféle lehetőséget kínál: kertészkedésre, pihenésre, akár kisállattartásra is kiváló. Udvaron garázs is megtalálható.
A környék csendes, jó szomszédsággal és biztonságos lakókörnyezettel.
A vételár tartalmazza:
A ház részben bútorozott, a következő bútorok a vételár részét képezik: konyhabútor, nappali bútor, hálószobabútor.
Ez az ingatlan remek lehetőség mindazoknak, akik egy nyugodt, biztonságos környéken, felújított, azonnal költözhető házat keresnek Szikszón.

OTP Banki hátterünknek köszönhetően finanszírozási igényekben (pl. Otthon Start Hitelprogram, Babaváró, Falusi CSOK, CSOK Plusz, Lakáshitel, Személyi kölcsön stb.), illetve biztosítások tekintetében is díjmentesen, soron kívüli ügyintézéssel segítem ügyfeleim!
Érdeklődés esetén hivatkozzon M314937 azonosítási számra.
További adatok
Telekterület: 1 095 m2
Kert mérete: -
Erkély mérete: -
Felszereltség: -
Parkolás: lakáshoz van kültéri parkoló
Kilátás: -
Egyéb extrák:  
Hirdető adatai
Hirdető neve: otpip.hu - Miskolc Szemere Bertalan utca 20 - OTP Ingatlanpont Iroda
Kapcsolattartó: Fodor Zsuzsanna
Hirdető telefonszáma: +36-30-700-3571
Honlap: -
 
Üzenetet küldhet a hirdetőnek, árajánlatot tehet az ingatlanra:
Az Ön neve:
Az Ön e-mail címe:
Üzenet: