Ingatlan Televízió
Ingatlan Televízió
további hirdetések
adatlap bezárása

Miskolc 
Ifjúság útja 

Hivatkozási szám: 5848808
Ingatlan adatai
Irányár: 74 900 000 Ft
Típus: lakás (tégla)
Kategória: eladó
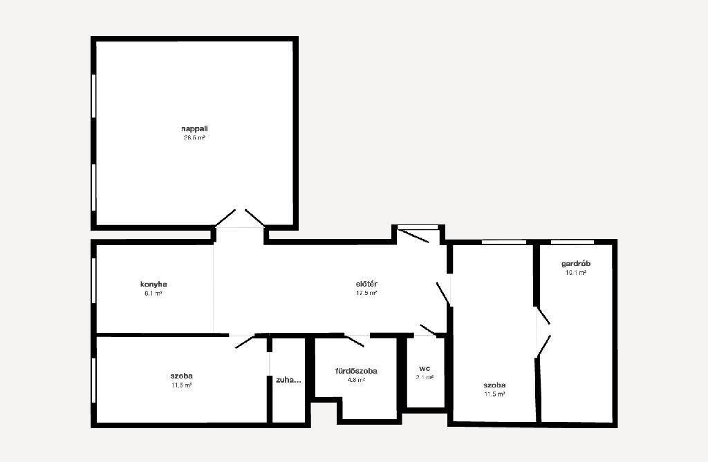
Alapterület: 94 m2
Fűtés: távfűtés
Állapota: felújított
Szobák száma: 3
Építés éve: 1920
Szintek száma: 1
Részletes leírás
Exkluzív, felújított nagypolgári lakás Miskolc belvárosának szívében. Családoknak és befektetőknek egyaránt tökéletes választás!

Eladó Miskolc belvárosának egyik legkedveltebb részén egy stílusos, 94 nm-es nagypolgári lakás, amely tágas tereivel és elegáns hangulatával azonnal magával ragadja az embert.
Az ingatlan egy rendezett társasház 1. emeletén található, és egy éve teljes körű felújításon esett át, így új tulajdonosát hibátlan műszaki és esztétikai állapotban várja.

A lakásban 3 hálószoba, világos nappali, egyedi konyha étkezővel, két fürdőszoba, gardróbszoba és erkély kapott helyet.
A fűtést modern, zárt égésterű gázkazán, a kényelmet pedig 3 klímaberendezés biztosítja. A beépített bútorok a vételár részét képezik.

Elhelyezkedése kivételes: a belváros nyugodt, mégis központi részén található, pár perc sétára minden fontos szolgáltatástól, üzlettől, iskolától és kávézótól. A történelmi környezet és a modern városi életstílus itt valódi harmóniában élnek együtt.

Ez a lakás kiváló választás családok számára, akik szeretnének belvárosi, mégis csendes otthonban élni, de befektetőknek is ideális, hiszen prémium elhelyezkedésének és állapotának köszönhetően azonnal kiadható, értéktartó ingatlan.

Amennyiben egy különleges, minőségi belvárosi otthont keres, ne hagyja ki ezt a lehetőséget!
Elhelyezkedéséből adódóan iskola, óvoda, posta, bolt, templom, és egyéb szolgáltatók 5-10 percen belül elérhetők. Banki hátterünknek köszönhetően 3%-os Otthon Start hitel, CSOK, Falusi CSOK, Babaváró hitel ügyintézésben is tudunk segíteni ügyfeleinknek. Érdeklődés esetén kérem hivatkozzon az M315785-ös referenciaszámra.
További adatok
Telekterület: -
Kert mérete: -
Erkély mérete: -
Felszereltség: -
Parkolás: -
Kilátás: -
Egyéb extrák:  
Hirdető adatai
Hirdető neve: otpip.hu - Miskolc Szemere Bertalan utca 20 - OTP Ingatlanpont Iroda
Kapcsolattartó: Drótos Bence
Hirdető telefonszáma: +36-30-590-4195
Honlap: -
 
Üzenetet küldhet a hirdetőnek, árajánlatot tehet az ingatlanra:
Az Ön neve:
Az Ön e-mail címe:
Üzenet: