Ingatlan Televízió
Ingatlan Televízió
további hirdetések
adatlap bezárása

Hajdúsámson 
 

Hivatkozási szám: 5848874
Ingatlan adatai
Irányár: 92 500 000 Ft
Típus: lakás (tégla)
Kategória: eladó
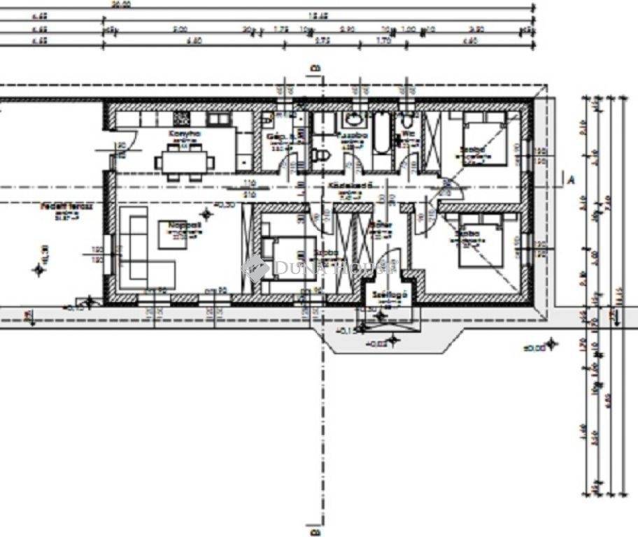
Alapterület: 101 m2
Fűtés: gáz
Állapota: új
Szobák száma: 3
Építés éve: 2025
Szintek száma: 1
Részletes leírás
Eladó egy csodálatos, újonnan épült, ikerház Hajdúsámson kedvelt, kertvárosi övezetében, csendes utcában, csupán 10 perc autóútra Debrecentől, könnyen megközelíthető az újonnan épült 4 sávos autóúton. Az ingatlan vételára 92 500 000 HUF.
Ne hagyja ki ezt a ritka lehetőséget, ha egy nyugodt, mégis jól megközelíthető helyen keres álmai otthonát. Vegye fel velünk a kapcsolatot még ma, és tegye meg az első lépést afelé, hogy ebben a gyönyörű, újonnan épült otthonban ébredhessen minden nap!

A fűtésről gázkazán gondoskodik, így a házban a téli hónapokban is kellemes meleg uralkodik. A kert nézete pedig igazi nyugalom szigetét nyújtja az itt lakóknak.

Az ingatlan remek beosztású: egy tágas, amerikai konyhás nappaliból, 3 külön szobából, és egy nagy, fedett teraszból áll, amely közvetlenül kapcsolódik a kerttel. A kertben lehetőség nyílik egy saját pihenő park kialakítására, ami tökéletes helyszíne lehet a családi és baráti összejöveteleknek, vagy egyszerűen csak egy csendes kikapcsolódásra a hét minden napján. A területre gépkocsival könnyen be lehet állni, aminek köszönhetően a mindennapi kényelem garantált.

Ez a napfényes otthon, amely 2025 évi kezdéssel épül, kiváló választás azok számára, akik a város zajától távol, de mégis közel szeretnének élni a városhoz. A 4251 Hajdúsámson, Hajdú-Bihar megyében található ház tökéletes kombinációját kínálja a modern kényelemnek és a természet közelségének.
Üdvözlettel;
Best regards:

Baraté Róbert
Ingatlanértékesítő
+36-(70) 527 4759
barate.robert@dh.hu
Álomház Doktor Kft.
4029 Debrecen, Csapó u. 42.
+36-(52) 789505
www.dh.hu

Referencia szám: HZ097986
További adatok
Telekterület: 480 m2
Kert mérete: -
Erkély mérete: 35 m2
Felszereltség: -
Parkolás: garázs
Kilátás: -
Egyéb extrák:  
Hirdető adatai
Hirdető neve: dh.hu - Debrecen, Csapó
Kapcsolattartó: Baraté Róbert
Hirdető telefonszáma: +36705274759
Honlap: -
 
Üzenetet küldhet a hirdetőnek, árajánlatot tehet az ingatlanra:
Az Ön neve:
Az Ön e-mail címe:
Üzenet: