Ingatlan Televízió
Ingatlan Televízió
további hirdetések
adatlap bezárása

Budapest, II.kerület 
Lotz Károly utca 

Hivatkozási szám: 5848940
Ingatlan adatai
Irányár: 334 000 000 Ft
Típus: lakás (tégla)
Kategória: eladó
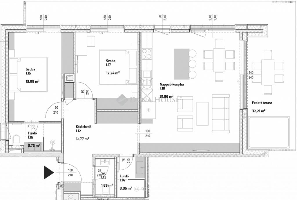
Alapterület: 95 m2
Fűtés: -
Állapota: új
Szobák száma: 3
Építés éve: 2025
Szintek száma: 1
Részletes leírás
Új építésű elegancia Pasaréten – ajándék jacuzzival!

A kortárs luxus új szintje: modern építészet, geotermikus technológia, okosotthon-rendszer és kompromisszummentes kényelem.
Pasarét szívében, a II. kerület egyik legzöldebb, legexkluzívabb részén valósult meg ez az 2025-ben épült, 5 lakásos, liftes társasház – ahol még elérhetők prémium lakások!

Amitől ez különleges:
Jacuzzival és pergolával felszerelt terasz minden lakáshoz
Geotermikus fűtés-hűtés, mennyezet- és padlófűtés, Daikin fan-coilokkal
LOXONE okosotthon: fény, árnyékolás, fűtés, biztonság – egy érintésre
Letisztult, modern építészeti design, prémium anyaghasználat
Tágas, napfényes terek, nagy üvegfelületek, harmonikus zöld környezet

Minden lakáshoz 2 garázshely és tároló
Azonnal költözhető

Pasarét előnyei:
Zöld, elegáns, csendes – mégis pár perc a Széll Kálmán tér.
Kávézók, iskolák (Francia Iskola, Britannica, Piarista Gimnázium), sport és természet minden irányban.

Ez az otthon a budai életstílus esszenciája – modern, nyugodt, értékálló.
Hívj most, és fedezd fel a KAPY16 exkluzív lakásait – akár hétvégén is!

Referencia szám: PR018560/LK/26079
További adatok
Telekterület: -
Kert mérete: -
Erkély mérete: 32 m2
Felszereltség: -
Parkolás: -
Kilátás: -
Egyéb extrák:  
Hirdető adatai
Hirdető neve: dh.hu - Miskolc, Centrum
Kapcsolattartó: Pogány Nikolett
Hirdető telefonszáma: +36706790621
Honlap: -
 
Üzenetet küldhet a hirdetőnek, árajánlatot tehet az ingatlanra:
Az Ön neve:
Az Ön e-mail címe:
Üzenet: