Ingatlan Televízió
Ingatlan Televízió
további hirdetések
adatlap bezárása

Jászfényszaru 
 

Hivatkozási szám: 5848977
Ingatlan adatai
Irányár: 64 900 000 Ft
Típus: lakás (tégla)
Kategória: eladó
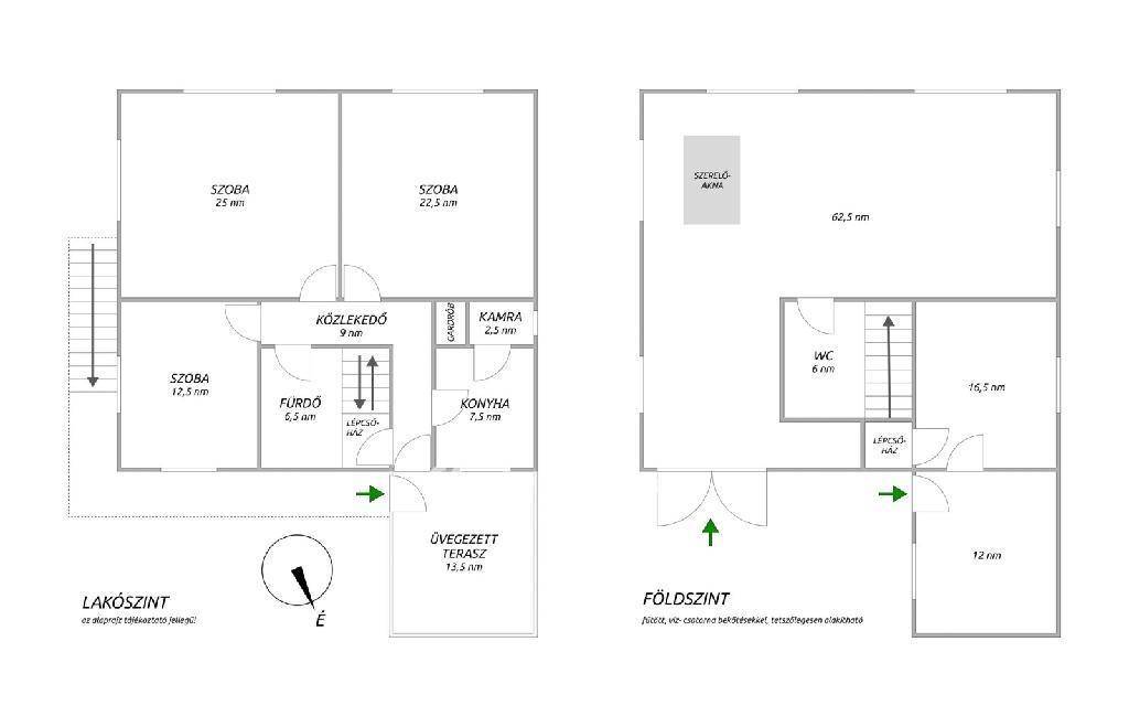
Alapterület: 220 m2
Fűtés: gáz (cirko)
Állapota: felújított
Szobák száma: 3
Építés éve: 1980
Szintek száma: 2
Részletes leírás
Jász-Nagykun-Szolnok vármegye, Jászfényszaru - kétszintes, részben felújított családi ház eladó!

Jászfényszaru központi, mégis csendes utcájában kínálok megvételre egy 110 nm-es, kétszintes, tégla építésű családi házat, amely rengeteg lehetőséget rejt magában. Az emeleti lakótérben három kényelmes szoba, konyha, kamra, fürdőszoba, közlekedő és egy hangulatos fedett terasz található. A földszinti rész jelenleg műhelyként és garázsként funkcionál, azonban kialakításának köszönhetően könnyedén átalakítható külön bejáratú lakássá, irodává vagy akár üzlethelyiséggé is.

Az ingatlan 10 cm-es hőszigeteléssel rendelkezik, tetőszerkezete cserép borítású. Az elmúlt években több ponton megújult: új tetőszerkezetet, külső szigetelést és modern nyílászárókat kapott, továbbá új villamos hálózat, ipari áram és térkövezett udvar is növeli értékét. A fűtésről gázkazán, vegyestüzelésű kazán és hűtő-fűtő klíma gondoskodik, így az otthon minden évszakban kellemes hőmérsékletet biztosít.

Ez a ház tökéletes választás mindazoknak, akik tágas, jól alakítható otthont keresnek nyugodt környezetben, ugyanakkor céges hasznosításra is kiválóan alkalmas.

Ingatlanvásárláshoz az OTP Bank kedvező hitelkonstrukcióit ajánlom.
Kérem, hívjon bizalommal - készséggel tájékoztatom a részletekről!
Érd: Tamus Angéla +36 70 601 2099

Referencia szám: M316986
További adatok
Telekterület: 840 m2
Kert mérete: -
Erkély mérete: 14 m2
Felszereltség: -
Parkolás: garázs
Kilátás: -
Egyéb extrák:  
Hirdető adatai
Hirdető neve: otpip.hu - Jászberény Gyöngyösi út 36 - OTP Ingatlanpont Iroda
Kapcsolattartó: Tamus Angéla Erzsébet
Hirdető telefonszáma: +36-70-601-2099
Honlap: -
 
Üzenetet küldhet a hirdetőnek, árajánlatot tehet az ingatlanra:
Az Ön neve:
Az Ön e-mail címe:
Üzenet: