Ingatlan Televízió
Ingatlan Televízió
további hirdetések
adatlap bezárása

Budapest, IV.kerület 
 

Hivatkozási szám: 5849092
Ingatlan adatai
Irányár: 86 900 000 Ft
Típus: lakás (panel)
Kategória: eladó
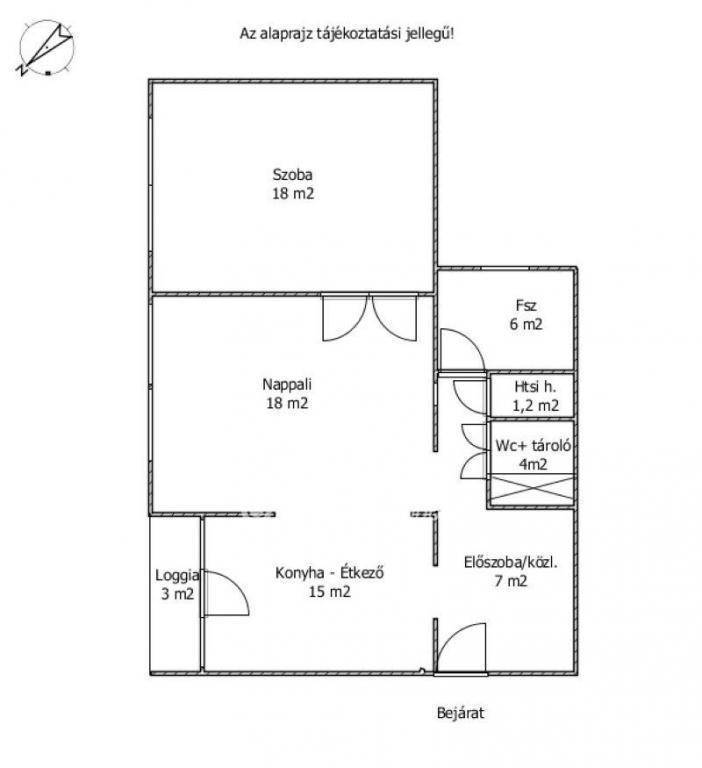
Alapterület: 71 m2
Fűtés: távfűtés
Állapota: felújított
Szobák száma: 2
Építés éve: 1981
Szintek száma: 1
Részletes leírás
Kivételes lehetőség - csak hozza a bőröndjét! Eladó Otthon Start Programnak megfelelő 71 nm-es, tágas, világos, teljesen felújíott és átalakított, klímás, tehermentes, azonnal költözhető, erkélyes, II. emeleti lakás! Teljesen berendezett, az ár tartalmazza igény szerint a bútorokat is - így tényleg csak költöznie kell! (A képek látványtervet is tartalmaznak).
Modern, igényes kialakítás, kényelmes elrendezés és kellemes hangulat várja az új tulajdonost. Az ingatlan rendezett, csendes, biztonságos környezetben található, kiváló infrastruktúrával és közlekedéssel - az M3-s metróvonal Újpest - Városkapu és Újpest-Központ megállója között, parkosított területen. A közelben - sétatávolságra - minden megtalálható, amire csak szüksége lehet: iskola, óvoda, park, játszótér, orvosi rendelők, különféle szolgáltatások, bevásárlási és sportolási lehetőségek, kávézók...busz-pályaudvar és vasútállomás!
Ideális választás lehet fiatal párnak, kisgyermekes családnak, de akár befektetési lehetőségnek is nagyszerű!
Ügyfeleink számára teljes körű ügyintézéssel állunk rendelkezésre! Kínálatunkból választott ingatlan finanszírozásához kedvezményes hitelmegoldásokat kínálunk, illetve az adásvételi szerződés megkötéséhez megbízható ügyvédi közreműködést is tudunk biztosítani!
Ha hirdetésünk felkeltette érdeklődését, kérem hívjon bizalommal a hét bármely napján!
M316220
További adatok
Telekterület: -
Kert mérete: -
Erkély mérete: -
Felszereltség: -
Parkolás: -
Kilátás: -
Egyéb extrák:  
Hirdető adatai
Hirdető neve: otpip.hu - Budapest II. kerület Szépvölgyi út 2 - OTP Ingatlanpont Iroda
Kapcsolattartó: Berényi Viktória
Hirdető telefonszáma: +36707916174
Honlap: -
 
Üzenetet küldhet a hirdetőnek, árajánlatot tehet az ingatlanra:
Az Ön neve:
Az Ön e-mail címe:
Üzenet: