Ingatlan Televízió
Ingatlan Televízió
további hirdetések
adatlap bezárása

Siófok 
 

Hivatkozási szám: 5849424
Ingatlan adatai
Irányár: 199 000 000 Ft
Típus: lakás (tégla)
Kategória: eladó
Alapterület: 142 m2
Fűtés: gáz (cirko)
Állapota: felújított
Szobák száma: 6
Építés éve: 1981
Szintek száma: 3
Részletes leírás
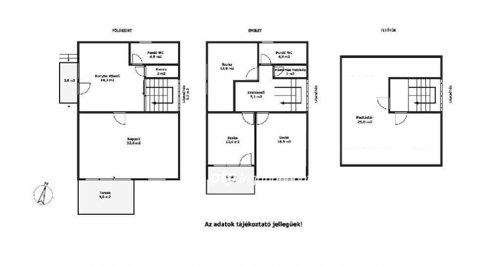
Siófok Ezüstpartján, a Balatontól mindössze 140 méterre felújított, kétszintes családi ház és különálló melléképület eladó egyben és külön is.

Siófok közkedvelt Újhelyi városrészében, a szabad strandtól csupán 2 perc sétára kínálunk megvételre egy 117 nm-s, kétszintes családi házat, valamint egy különálló, 25 nm-s, teljes értékű melléképületet.

Főépület jellemzői:

Új, korszerű gázkazán biztosítja a fűtést.

Földszinti, világos nappali hangulatos terasszal.

Az emeleten 3 kényelmes hálószoba.

A tetőtérben további beépítési lehetőség.

Friss energetikai korszerűsítés.

Új, hőszigetelt nyílászárók.

Megújult, modern vizesblokkok, új burkolatokkal és szaniterekkel

Felújított, hőszigetelt homlokzat.

A földszinti beépített konyhabútor a vételár részét képezi.

Melléképület:

A különálló, egyszintes épület 25 nm-s lakóteret kínál, két fedett terasszal.
Hőszigetelt, műanyag nyílászáróinak és kialakításának köszönhetően vendégháznak, irodának vagy kiadható apartmannak is kiváló lehetőség.

Telek és parkolás:

Összesen 727 nm-s, gondozott telek. (fő ház 314 nm, kis ház 269 nm, egyéb 144 nm)

Parkolás a zárt udvarban vagy a ház előtti ingyenes közterületen.

Kiváló elhelyezkedés, felújított állapot, többfunkciós melléképület tökéletes nyaraló, állandó otthon vagy akár befektetés!

Megtekintéshez várom hívását. M316304

199000000 Ft

Referencia szám: M316304
További adatok
Telekterület: 583 m2
Kert mérete: -
Erkély mérete: 35 m2
Felszereltség: -
Parkolás: lakáshoz van kültéri parkoló
Kilátás: -
Egyéb extrák:  
Hirdető adatai
Hirdető neve: otpip.hu - Pécs Rákóczi út 19 - OTP Ingatlanpont Iroda
Kapcsolattartó: Vincze László György
Hirdető telefonszáma: +36-20-938-4141
Honlap: -
 
Üzenetet küldhet a hirdetőnek, árajánlatot tehet az ingatlanra:
Az Ön neve:
Az Ön e-mail címe:
Üzenet: