Ingatlan Televízió
Ingatlan Televízió
további hirdetések
adatlap bezárása

Versend 
 

Hivatkozási szám: 5849427
Ingatlan adatai
Irányár: 16 900 000 Ft
Típus: lakás (tégla)
Kategória: eladó
Alapterület: 125 m2
Fűtés: gáz (konvektor)
Állapota: felújított
Szobák száma: 4
Építés éve: 1974
Szintek száma: 1
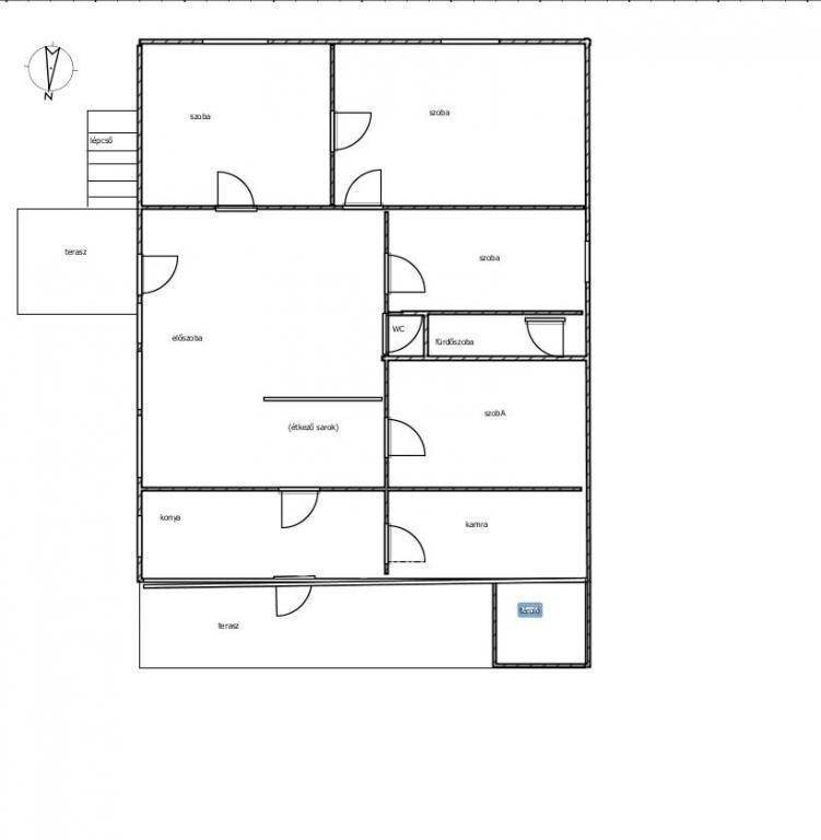
Részletes leírás
Bóly vonzáskörzetében eladó egy tágas, világos családi ház csendes, intim telken! Versend településén eladásra kínálok egy 125 nm-es, 4 szobás családi házat, ami 1 685nm-es telken helyezkedik el. Az ingatlan1974-ben épült, tégla falazatú, szerkezetileg stabil, belső terei átlagosak, de ízlés szerint korszerűsíthető. Fűtése gázkonvektorral és villanyradiátorral megoldott. A telek intim, az utcáról nem látható, ami maximális magánszférát biztosít. Az udvaron található ólak és melléképületek további lehetőségeket rejtenek magukban, ami érték növelést eredményezhet. Ideális kert kialakításhoz, hobbihoz, tárolásra, vagy akár háziállattartásra. Elhelyezkedése Versendnek, Baranya vármegye délkeleti részén fekszik, mindössze 6 km Bólytól, 15km-re Mohácstól és 25 km Pécstől. A település közvetlenül a 57-es főút mellett fekszik, így a közlekedés egyszerű, miközben a falusi nyugalom megmarad. M6-os autópálya elérhető közelségben van. Az ingatlan azonnal költözhető, így akár rögtön birtokba vehető. A vásárlás, Támogatott Otthon Start Programon keresztül is lehetséges. Amennyiben felkeltette érdeklődését az ingatlan, hívjon, és tekintse meg személyesen!

Referencia szám: M317647
További adatok
Telekterület: 1 685 m2
Kert mérete: -
Erkély mérete: -
Felszereltség: -
Parkolás: lakáshoz van kültéri parkoló
Kilátás: -
Egyéb extrák:  
Hirdető adatai
Hirdető neve: otpip.hu - Pécs Király utca 75 - OTP Ingatlanpont Iroda
Kapcsolattartó: Szabó Ágnes
Hirdető telefonszáma: +36205097862
Honlap: -
 
Üzenetet küldhet a hirdetőnek, árajánlatot tehet az ingatlanra:
Az Ön neve:
Az Ön e-mail címe:
Üzenet: