Ingatlan Televízió
Ingatlan Televízió
további hirdetések
adatlap bezárása

Debrecen 
 

Hivatkozási szám: 5850237
Ingatlan adatai
Irányár: 60 000 000 Ft
Típus: lakás (panel)
Kategória: eladó
Alapterület: 61 m2
Fűtés: házközponti fűtés
Állapota: -
Szobák száma: 3
Építés éve: 1975
Szintek száma: -
Részletes leírás
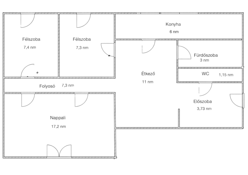
Eladásra kínálunk egy 61 m²-es, 1+2 félszobás, világos és csendes lakást Tócóvölgy szívében, egy rendezett, négyemeletes társasház 4. emeletén (nem zárószint!).

Főbb jellemzők:
- Alapterület: 61 m²
- Elrendezés: nappali/hálószoba, étkező, konyha, két félszoba, kamra, előszoba, külön fürdő és WC
- Távfűtés egyedi mérés nélkül, fűtő-hűtő klíma
- Új bejárati ajtó
- Frissen cserélt vízórák és szennyvízcsövek
- Új, garanciás csaptelepek a konyhában és fürdőben
- Saját, zárt tároló
- Gondozott, parkosított udvar játszótérrel, kondiparkkal és padokkal

Elhelyezkedés:
Tócóvölgy Debrecen egyik legkedveltebb és legbarátságosabb városrésze, kiváló infrastruktúrával.
A közelben minden megtalálható: élelmiszerbolt, iskola, óvoda, orvosi rendelő, gyógyszertár, pékség, ételbár, drogéria – sőt, még jégcsarnok is!

Közlekedése kiváló:
- Gyors elérés az autópálya-felhajtóhoz
- Könnyen megközelíthető a Déli, Határ úti és Nyugati Ipari park, valamint a belváros
- Ingyenes parkolás a ház körül

Tökéletes választás:
- Saját otthonnak
- Első lakásként
- Kisgyermekes családoknak
- Értékálló, biztonságos befektetésként

Az ingatlan kizárólag készpénzes vevők számára elérhető.

Ne hagyja ki ezt a kivételes lehetőséget – világos, tágas, gondosan karbantartott lakás Tócóvölgy legjobb részén!

További információért és megtekintésért keressen bizalommal a hét bármely napján!
További adatok
Telekterület: -
Kert mérete: -
Erkély mérete: -
Felszereltség: -
Parkolás: -
Kilátás: utcai
Egyéb extrák:  
Hirdető adatai
Hirdető neve: Otthon Centrum
Kapcsolattartó: Tomsits Abigél
Hirdető telefonszáma: +36 70 388 6341
Honlap: -
 
Üzenetet küldhet a hirdetőnek, árajánlatot tehet az ingatlanra:
Az Ön neve:
Az Ön e-mail címe:
Üzenet: