Ingatlan Televízió
Ingatlan Televízió
további hirdetések
adatlap bezárása

Budapest, XIII.kerület 
 

Hivatkozási szám: 5850330
Ingatlan adatai
Irányár: 145 000 000 Ft
Típus: lakás (tégla)
Kategória: eladó
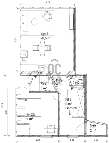
Alapterület: 57 m2
Fűtés: -
Állapota: -
Szobák száma: 2
Építés éve: 1950
Szintek száma: -
Részletes leírás
Fektess be egy igazán különleges ingatlanba, amely nemcsak a lakhatás, hanem a jövedelmező befektetés szempontjából is ideális választás!
Ez a frissen felújított, belvárosi lakás Budapest 13. kerületének szívében, a felkapott Újlipótvárosban található, ahol a modern életstílus és a klasszikus városi hangulat találkozik.
Az ingatlan alapterülete 57 nm, és egy tágas nappalival, valamint egy jól megtervezett amerikai konyhával rendelkezik, amely tökéletes helyszín a baráti összejövetelekhez vagy a családi étkezésekhez. A két szoba világos és barátságos, a beépített bútorok és szekrények pedig praktikus megoldásokat kínálnak a tárolásra. Az ingatlan állapota kiváló, így azonnal költözhető, és tehermentes, ami különösen fontos a befektetők számára. Az elektromos fűtés és a klímaberendezés garantálja a kényelmet minden évszakban.
A lakás egyedi tervezése és modern kialakítása miatt ideális választás lehet fiatal pároknak, egyedülállóknak, vagy akár rövid távú bérbeadásra is, hiszen a környék ellátottsága kiváló, és a közlekedési csomópontok közelsége miatt könnyen elérhető a város többi része. Az Újlipótváros nemcsak a lakás szempontjából vonzó, hanem a környék adottságai miatt is.
A központi elhelyezkedés lehetővé teszi, hogy minden fontos szolgáltatás, mint például boltok, éttermek és kávézók, karnyújtásnyira legyenek tőled. A csendes utcák és a barátságos szomszédság ideális környezetet biztosítanak a mindennapi élethez, miközben a közlekedés kitűnő: a közelben található busz- és villamosmegállók gyors kapcsolatot biztosítanak a város többi részével. H
a befektetésre keresel lehetőséget, ez a lakás tökéletes választás! Az ingatlan értéke folyamatosan növekszik, és a kereslet az ilyen típusú lakások iránt a jövőben is fennmarad. Ne habozz, hiszen az ilyen lehetőségek gyorsan elkelnek! Ha bármilyen kérdésed van, vagy szeretnéd megtekinteni az ingatlant, bátran keress meg! Bizalommal várom a megkeresésedet, hiszen az ingatlanpiac ezen szegmense rendkívül dinamikus, és a legjobb ajánlatokat nem érdemes kihagyni. Tedd meg az első lépést a sikeres befektetés felé, és lépj kapcsolatba velem még ma!
További adatok
Telekterület: -
Kert mérete: -
Erkély mérete: -
Felszereltség: -
Parkolás: -
Kilátás: utcai
Egyéb extrák:  
Hirdető adatai
Hirdető neve: Otthon Centrum
Kapcsolattartó: Posváncz Katalin
Hirdető telefonszáma: +36 70 716 9671
Honlap: -
 
Üzenetet küldhet a hirdetőnek, árajánlatot tehet az ingatlanra:
Az Ön neve:
Az Ön e-mail címe:
Üzenet: