Ingatlan Televízió
Ingatlan Televízió
további hirdetések
adatlap bezárása

Budapest, VII.kerület 
 

Hivatkozási szám: 5850393
Ingatlan adatai
Irányár: 83 900 000 Ft
Típus: lakás (tégla)
Kategória: eladó
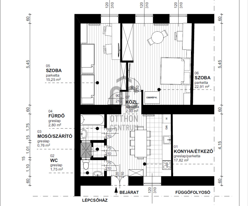
Alapterület: 63 m2
Fűtés: elektromos
Állapota: -
Szobák száma: 2
Építés éve: -
Szintek száma: -
Részletes leírás
A körúthoz közel, mégis csendes, hangulatos utcában található ez a 63 m²-es, első emeleti otthon, amelyet két éve teljes körűen és igényesen felújítottak. A klasszikus épület rendezett lépcsőházából léphetünk be a lakásba, amely a modern kényelem és az egyszerűség tökéletes ötvözete.

A tágas, étkező-konyháa a lakás központja lehet, amely nyugati tájolásának köszönhetően egész nap világos és barátságos hangulatú. Innen nyílik a fürdőszoba, a külön WC, valamint egy praktikus mosókonyha. A két keleti fekvésű hálószoba a csendes, rendezett utcára néz, biztosítva a nyugodt pihenést.

A lakás nagy belmagasságú (390cm), levegős terekkel és elegáns burkolatokkal rendelkezik. Teljesen berendezve eladó, a konyhai gépek garanciálisak, a fűtés modern elektromos panelekkel, a melegvíz energiatakarékos bojlerrel megoldott. A pincében egy 6 m²-es tárolóhelyiség is tartozik hozzá.

A társasház és az udvar rendezett, a lakóközösség barátságos. A környék dinamikusan fejlődik – az utcában két új szálloda épül, a közelben park, üzletek és számos szolgáltatás található.

Kiváló választás mind saját otthonnak, mind befektetésnek!
További adatok
Telekterület: -
Kert mérete: -
Erkély mérete: -
Felszereltség: -
Parkolás: -
Kilátás: utcai
Egyéb extrák:  
Hirdető adatai
Hirdető neve: Otthon Centrum
Kapcsolattartó: Kondor László
Hirdető telefonszáma: +36 70 716 9681
Honlap: -
 
Üzenetet küldhet a hirdetőnek, árajánlatot tehet az ingatlanra:
Az Ön neve:
Az Ön e-mail címe:
Üzenet: