Ingatlan Televízió
Ingatlan Televízió
további hirdetések
adatlap bezárása

Budapest, X.kerület 
 

Hivatkozási szám: 5850432
Ingatlan adatai
Irányár: 159 900 000 Ft
Típus: ház
Kategória: eladó
Alapterület: 122 m2
Fűtés: -
Állapota: új
Szobák száma: 4
Építés éve: 2026
Szintek száma: -
Részletes leírás
Exkluzív lehetőség azok számára, akik minőségi, XXI. századi otthont keresnek a belvároshoz közel, mégis egy nyugodt, családias környezetben.
A csendes mellékutcában elhelyezkedő, prémium műszaki tartalommal rendelkező ikerház minden igényt kielégít – a modern életstílus jegyében.

Kiemelkedő adottságok és átgondolt tervezés

Az ingatlan a legmodernebb műszaki elvárások szerint készül, kiváló minőségű anyagok és prémium gépészeti megoldások alkalmazásával. A telek adottságai maximálisan kihasználásra kerültek, így egy esztétikus, funkcionális és hosszú távon értékálló családi otthon születik.

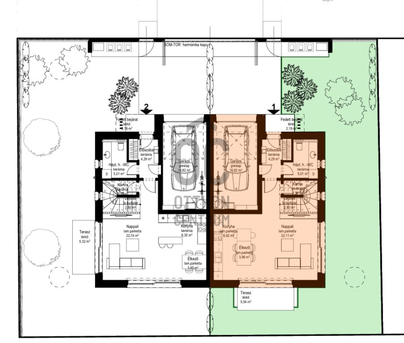
A hasznos alapterület 122 m², két szinten:

Földszint:
- Tágas, 33 m²-es amerikai konyhás nappali, közvetlen teraszkapcsolattal és kerttel
- Zuhanyzó + WC
- Háztartási helyiség
- Nagyméretű, fedett garázs – akár nagyobb autó számára is ideális

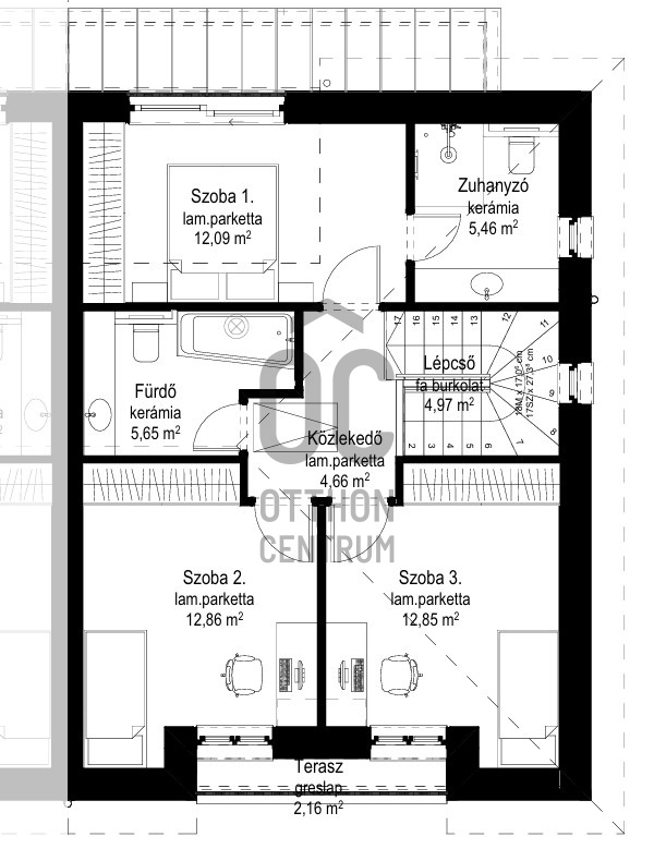
Emelet
- 3 kényelmes hálószoba
- 2 modern fürdőszoba

A házhoz tartozó 231 m²-es privát kert igazi oázis, mely teljes intimitást biztosít, így tökéletes lehet családoknak, pihenéshez vagy akár kertészkedéshez is.

Prémium műszaki tartalom
- 30 cm Porotherm főfalak
- 3 rétegű, hőszigetelt műanyag nyílászárók
- Monolit vasbeton födém
- Terrán Zenit Max Carbon tetőcserép
- 15 cm homlokzati hőszigetelés, korszerű energetikai besorolással
- Hőszivattyús rendszer, mennyezeti fűtés-hűtés
- Minőségi burkolatok, térkövezett udvar

Extrák, amelyek valódi kényelmet adnak
- Okosotthon rendszer
- Elektromos redőnyök
- Kamera- és riasztórendszer előkészítés
- Videókaputelefon
- Elektromos kapu
- Öntözőrendszer
- Elektromos autótöltő kiépítése
- WPC kerítés
-Rejtett- és udvarvilágítás
- Légtechnika
- Teljes digitális átláthatóság az építkezés során

A PlanRadar rendszernek köszönhetően Ön:
- Valós időben követheti az építkezés minden lépését
- Kéthetente részletes, fotókkal ellátott jelentést kap
- A projekt végén minden dokumentumot digitálisan átvehet egy biztonságos felületen

Finanszírozás
Az ingatlan hitelre is megvásárolható, ügyfeleink számára díjmentes hitelügyintézéssel, minden hazai bank kínálatából.
Állami támogatások is igénybe vehetők!

Várható átadás: 2026. III. negyedév

Ne maradjon le!
Ilyen színvonalú, modern és biztonságos otthon ritkán kerül a piacra. Kiváló választás családoknak, pároknak és mindenkinek, aki igényes, hosszú távon értékálló ingatlant keres.

Forduljon hozzám bizalommal a hét bármely napján!
További adatok
Telekterület: 231 m2
Kert mérete: 231 m2
Erkély mérete: 7 m2
Felszereltség: -
Parkolás: -
Kilátás: -
Egyéb extrák:  
Hirdető adatai
Hirdető neve: Otthon Centrum
Kapcsolattartó: Pomucz-Nagy Anita
Hirdető telefonszáma: +36 70 469 3296
Honlap: -
 
Üzenetet küldhet a hirdetőnek, árajánlatot tehet az ingatlanra:
Az Ön neve:
Az Ön e-mail címe:
Üzenet: