Ingatlan Televízió
Ingatlan Televízió
további hirdetések
adatlap bezárása

Bihartorda 
 

Hivatkozási szám: 5850567
Ingatlan adatai
Irányár: 26 900 000 Ft
Típus: ház
Kategória: eladó
Alapterület: 108 m2
Fűtés: gáz (cirko)
Állapota: felújítást igényel
Szobák száma: 5
Építés éve: 1979
Szintek száma: 1
Részletes leírás
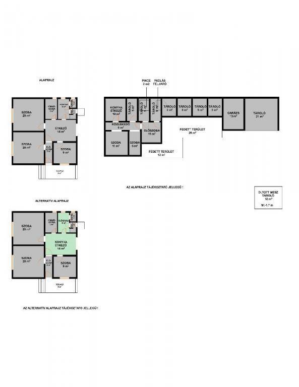
ELADÓ INGATLAN - HÁROM UTCÁRA NYÍLÓ NAGY TELEKKEL BIHARTORDÁN!

Több generációs együttéléshez, vállalkozáshoz vagy telekmegosztáshoz is ideális lehetőség!
Bihartorda aszfaltozott utcás részén, rendezett lakókörnyezetben, jól megközelíthető minden irányból.

Főbb paraméterek:
- Telek mérete: 2 865 m2
- Akár 3 különálló telekrészre osztható ( 955 m2 / telek)
- Hasznos lakóterület összesen: kb. 124 m2
- Tárolók, műhelyek, garázs: összesen kb. 44 m2
- Fedett terület / beálló: több mint 40 m2
- 3 utcára néző, körben aszfaltozott megközelítés
- Összközműves (víz, gáz, villany, csatorna mindkét épületben)

Épületek és elrendezés:

1. Családi ház (kb. 77 m2)
- Beton alapon, szilikát falazattal
- Konyha
- Étkező
- 3 szoba
- Előszoba
- Fürdőszoba + WC
- Fedett terasz
- Fűtés: gázcirkó + vegyestüzelésű kazán

2. Családi ház / Vendégház (kb. 47m2)
-Beton alapon, beton blokk falazat
-Több helyiség kialakítható lakótérnek / iroda / műhely / apartman célra
- Melléképület es garázs (kb. 44m2)
- Kisebb pince is tartozik hozzá

Tágas, fedett területek
- kb. 40 m2 felett
- Autó beállónak
- Fa, szerszám tárolásra,
- Teraszos pihenőrésznek is alkalmas

Telek lehetőségek:
- Egyben nagy parkosítható kert
- Kiváló többgenerációs családoknak
- Vállalkozóknak vagy gazdálkodásra, de akár telephelynek is
- 3 külön telekre való megosztás - befektetőknek is ideális

Az épületek felújítást igényelnek, de stabil-szerkezetűek. Könnyen átalakíthatók, igény szerint modernizálhatók.

Ez az ingatlan ritka lehetőség azok számára, akik:
- Nagy telket keresnek sok lehetőséggel
- Több generációt szeretnének egy helyen, de külön terekben
- Befektetésben gondolkodnak
- Otthont + vállalkozást szeretnének egy helyen működtetni

A hirdetésben tervezett látványképek is meg vannak jelenítve, hogy segítsenek a végleges megjelenés pontosabb elképzelésében!

További információért hívjon bizalommal akár hétvégén is. Megtekintésre telefonos egyeztetés alapján van lehetőség. Kedvezményes kamatozású lakásvásárlási, felújítási hitelek, OTTHON START valamint CSOK és Babaváró ügyintézés az OTP hátterével irodánkban.
További adatok
Telekterület: 2 865 m2
Kert mérete: -
Erkély mérete: -
Felszereltség: -
Parkolás: lakáshoz van kültéri parkoló
Kilátás: -
Egyéb extrák:  
Hirdető adatai
Hirdető neve: otpip.hu - Debrecen Kürtös utca 8 - OTP Ingatlanpont Iroda
Kapcsolattartó: Mester Tibor
Hirdető telefonszáma: +36-20-806-7007
Honlap: -
 
Üzenetet küldhet a hirdetőnek, árajánlatot tehet az ingatlanra:
Az Ön neve:
Az Ön e-mail címe:
Üzenet: