Ingatlan Televízió
Ingatlan Televízió
további hirdetések
adatlap bezárása

Révfülöp 
 

Hivatkozási szám: 5850980
Ingatlan adatai
Irányár: 240 000 000 Ft
Típus: lakás (tégla)
Kategória: eladó
Alapterület: 492 m2
Fűtés: gáz (cirko)
Állapota: felújított
Szobák száma: 5
Építés éve: 1990
Szintek száma: 3
Részletes leírás
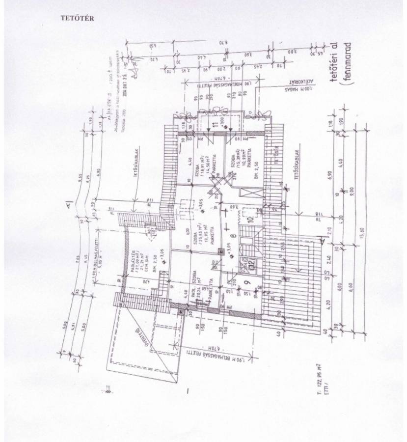
Eladó Révfülöpön egy családi ház, pince szint, földszint és tetőtér beépítéssel. Hasznos alapterület 492 nm, telek terület 1722 nm. Az épület 1990-ben készült, alapozása fagyhatár alá levíve, falazata B30-as téglából készült. Födémek vasbeton gerendák közé beépített béléstestekkel. A válaszfalak 10cm-es válaszfallapokból építve. Tetőszerkezet nyeregtetős-torokgerendás 45-ös hajlásszöggel készült. Bramac tetőcserép, nyílászárói fából és műanyagból készültek. Kémények száma kettő, amelyből egyik gázkémény, a másik tartalékkéményként működik. A falak vakolva a nyílászárók ízlés szerint cserélhetők. A földszinten kettőszoba összkomfort található, a tetőtérben három szoba összkomfort került kialakításra. teljes közmű.
A fűtést gázkazán biztosítaná a melegvizet villanybojler adja.
Beosztás a csatolt alaprajzok szerint.
A belterület nyugati részen található az ingatlan. Az utca beton utcában található, nyeles telken, kiépített úton. A ház nem az utcafronton található, hanem sokkal beljebb került megépítésre.
Fűtés jelen állapotban nincs, (gázóra, gázkazán leszerelve).
Hívjon bizalommal, visszahívom.

Referencia szám: BL140-ITV
További adatok
Telekterület: 1 722 m2
Kert mérete: -
Erkély mérete: 64 m2
Felszereltség: -
Parkolás: garázs
Kilátás: -
Egyéb extrák:  
Hirdető adatai
Hirdető neve: gmail.com - Borbás László Ingatlaniroda
Kapcsolattartó: Borbás László
Hirdető telefonszáma: 06702416516
Honlap: -
 
Üzenetet küldhet a hirdetőnek, árajánlatot tehet az ingatlanra:
Az Ön neve:
Az Ön e-mail címe:
Üzenet: