Ingatlan Televízió
Ingatlan Televízió
további hirdetések
adatlap bezárása

Levél 
 

Hivatkozási szám: 5850989
Ingatlan adatai
Irányár: 69 990 000 Ft
Típus: lakás (tégla)
Kategória: eladó
Alapterület: 105 m2
Fűtés: gáz
Állapota: felújított
Szobák száma: 5
Építés éve: 1977
Szintek száma: 1
Részletes leírás
ELADÓ BELSŐ KÉTSZINTES CSALÁDI HÁZ LEVÉL EGYIK CSENDES UTCÁJÁBAN! REMEK LOKÁCIÓ, AZONNAL KÖLTÖZHETŐ ÁLLAPOT! KIS RÁFORDÍTÁSSAL- ELÉRHETŐ ÁRON MEGTALÁLTA OTTHONÁT!

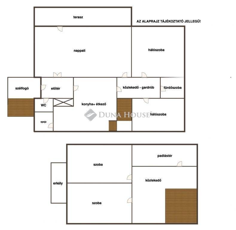
Levél csendes utcájában 2225nm-es telek használati megosztással leválasztott első telekhányadán 1110 négyzetméteren helyezkedik el egy 105nm hasznos alapterületű ingatlan.

1977-ben épült téglából, betonfödémes, 2 bejárattal rendlekezik, fűtéséről gázkazán, vegyses tüzelésű kazán és kandalló is gondoskodik.

Elosztása jól átgondolt, remek térkihasználtság jellemzi. Helyiségei a következők
Földszint:
- előtér
- közlekedő
- nappali
- 2 hálószoba
- konyha+ étkező
- fürdőszoba
Emelet:
- közlekedő
- 2 félszoba

Az ingatlan fele alatt kb 45nm-en beázásmentes, tárolásra kiválóan alkalmas pince található, valamint garázs is a pincében került kialakításra.A nappaliból nyílik egy megfelelő méretű terasz, ahol kényelmesen elfogyaszthatja reggeli kávéját.A nyílászárók egy része már műanyagra lett cserélve, redőnnyel ellátottak.

Extra: megtalálható egy vendégház is a telken, mely áll egy konyha+ étkezőből, fürdőszobából és hálószobából. Felújításra szorul, de kis ráfordítás után lakható az épület. Mellette megtalálható továbbá egy tároló, mely alatt pince található kb 25nm nagyságú. Kiváló lehetőségeket rejt magában egy az ingatlan, Levél egyik átmenő forgalomtól mentes utcájában található, szántóföldek ölelésében. Levél frekventált, jó infrastruktúrával rendelkező település, minden megtalálható ami a hétköznapi élethez szükséges!

Amennyiben felkeltette érdeklődését ez az ingatlan, hívjon bizalommal a hét bármely napján!
További adatok
Telekterület: 913 m2
Kert mérete: -
Erkély mérete: -
Felszereltség: -
Parkolás: garázs
Kilátás: -
Egyéb extrák:  
Hirdető adatai
Hirdető neve: dh.hu - Mosonmagyaróvár
Kapcsolattartó: Glaser Evelin Krisztina
Hirdető telefonszáma: +36206213553
Honlap: -
 
Üzenetet küldhet a hirdetőnek, árajánlatot tehet az ingatlanra:
Az Ön neve:
Az Ön e-mail címe:
Üzenet: