Ingatlan Televízió
Ingatlan Televízió
további hirdetések
adatlap bezárása

Miskolc 
Vörösmarty Mihály utca 

Hivatkozási szám: 5851013
Ingatlan adatai
Irányár: 395 000 Ft
Típus: lakás (tégla)
Kategória: kiadó
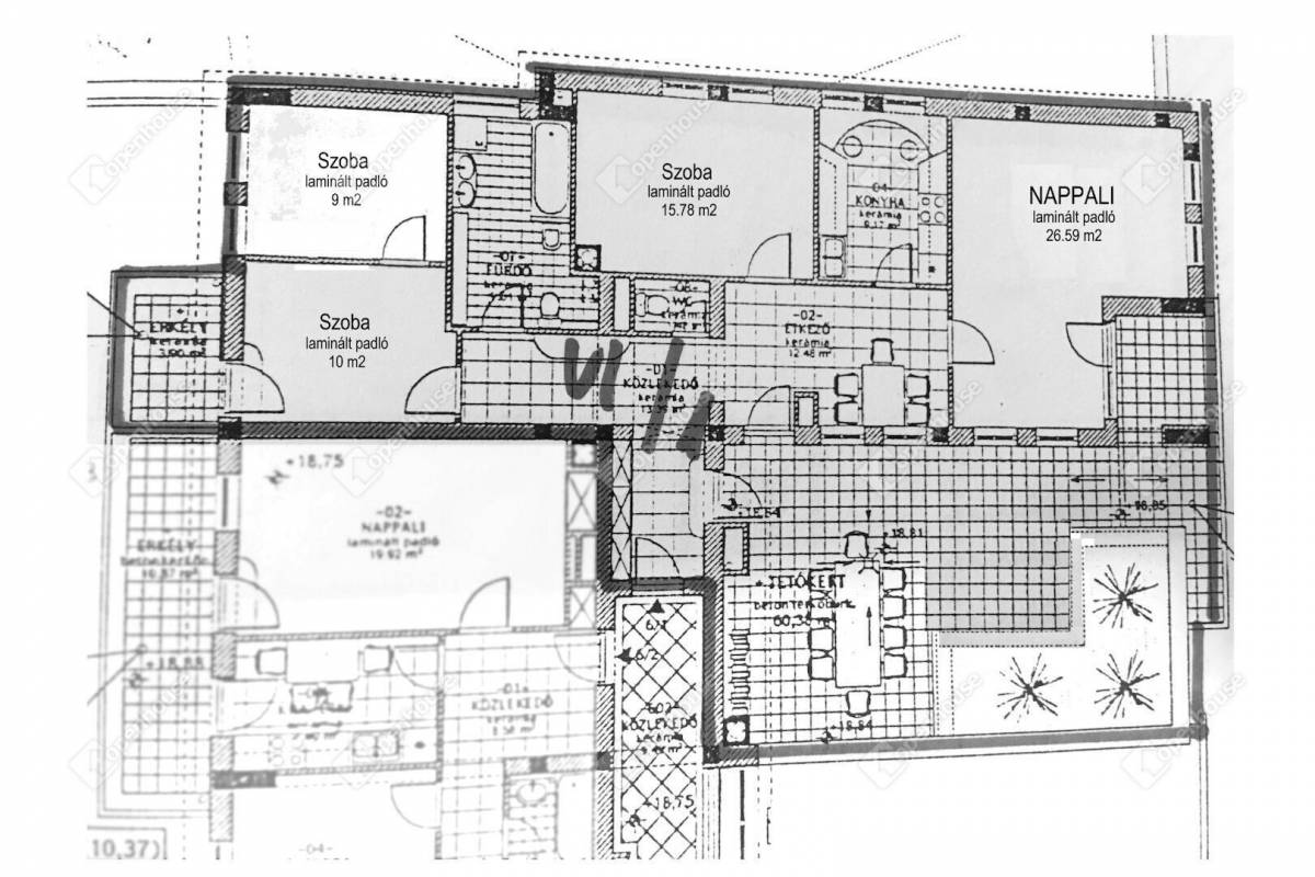
Alapterület: 140 m2
Fűtés: gáz (cirko)
Állapota: felújított
Szobák száma: 4
Építés éve: 2005
Szintek száma: 1
Részletes leírás
Az Openhouse Miskolc Szentpáli utcai Ingatlaniroda kínálatában kiadó a #178565 hivatkozási számú miskolci társasházi lakás.

A kiadó miskolci társasház jellemzői:
- 2 havi kaució, min. 1 éves szerződés
- a lakótér nettó területe 106 m2, a hozzá tartozó terasz és erkély területe pedig 70 m2
- a lakás a 6. emeleten található, ahová lifttel, saját biztonsági kóddal lehet feljutni
- 3 szoba + nappali, tágas terek
- az előfolyosón egy hatalmas szekrénysor került kialakításra, ahova a ritkán vagy nem használt tárgyaikat helyezhetik el, így a lakásban nem foglalják a helyet
- a luxus penthouse lakásban biztonsági riasztó rendszer is van
- márványpadló került lerakásra
- a fürdőszobában sarokkád, zuhanyzó, illetve WC is van
- van egy különálló WC is, ahol beépített infraszauna is használható
- az erkélyes oldalán a lakásnak két különálló szoba is van, az egyik szoba gardróbszobának is kialakítható
- az erkély DNy-i tájolású
- az étkezőből nyílik az egyedi konyhabútorral felszerelt, illetve gépesített konyha
- az étkező folytatása pedig a tágas nappali, egyedülálló antik bútorokkal és L alakú bőrkanapéval
- ha a napfelkeltével egybekötött reggeli kávézást szeretnénk, az is lehetséges a K-i fekvésű fedett kávézóteraszról
- grillezésre, kerti partykra alkalmas a hatalmas tetőterasz, ahonnan rálátunk a városra
- saját központi fűtés van, továbbá 3 db klíma gondoskodik a hűtésről
- 2 db mélygarázsos parkoló is tartozik a lakáshoz, igény szerint azok is bérelhetők: 25.000 ft/hó/db
- közelben találhatóak a buszmegállók és 10 perces sétára pedig a villamos
Elzártan, mégis a belvárosban élvezheti egy családi ház adottságait egyedülálló városi körpanorámával!

Ha felkeltette érdeklődését ez a miskolci társasházi lakás, vagy bármely más társasházi lakás és bővebb információt szeretne, keressen bizalommal.Hivatkozási szám: ##178565

Az Openhouse Miskolc Szentpáli utcai Ingatlaniroda tagjaként várom Önt az országos hálózatunk teljes kínálatával.

Vásárolna és Hitelt igényelne? Ingyenes hitelközvetítéssel segít Önnek bankfüggetlen hitelszakértőnk.

További szolgáltatásainkkal (pl. energetikai tanúsítvány, jogi háttér) is segítjük Önt a bérlésben.
Az otthon érték. Az ingatlan üzlet.

Bérleti díj: 395000 Ft/hó
Farkas Gábor +36204241111, Email: gabor.farkas@oh.hu, www.oh.hu

Referencia szám: 178565
További adatok
Telekterület: -
Kert mérete: -
Erkély mérete: 10 m2
Felszereltség: -
Parkolás: garázs
Kilátás: -
Egyéb extrák:  
Hirdető adatai
Hirdető neve: oh.hu - Openhouse Miskolc Szentpáli utcai Ingatlaniroda
Kapcsolattartó: Farkas Gábor Zoltán
Hirdető telefonszáma: +36204241111
Honlap: -
 
Üzenetet küldhet a hirdetőnek, árajánlatot tehet az ingatlanra:
Az Ön neve:
Az Ön e-mail címe:
Üzenet: