Ingatlan Televízió
Ingatlan Televízió
további hirdetések
adatlap bezárása

Balatonkenese 
 

Hivatkozási szám: 5851237
Ingatlan adatai
Irányár: 319 000 000 Ft
Típus: egyéb ingatlan
Kategória: eladó
Alapterület: 455 m2
Fűtés: gáz (cirko)
Állapota: felújított
Szobák száma: -
Építés éve: 2009
Szintek száma: -
Részletes leírás
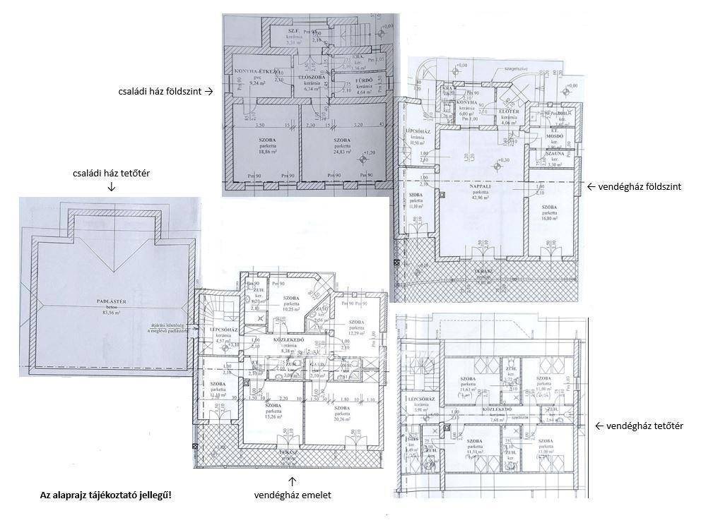
PRÉMIUM BALATONI BEFEKTETÉS ? PANZIÓ + VENDÉGLŐ + LAKÓHÁZ EGY TELKEN, PANORÁMÁVAL. Balaton keleti medence, Balatonkenese, 253 m2 panzió, 72 m2 (+ 64 m2 pince) családi ház, 60 m2 vendéglő, 1.482 m2 telek eladó. A település egyik legértékesebb, vízpart közeli utcájában egy komplex, azonnal hasznosítható turisztikai ingatlan, amely vendégházból, kisvendéglőből és különálló lakóházból áll egy fejlesztésre is alkalmas telken. A 2009-ben épült három szintes, 15 éve működő vendégház teljesen felszerelt, egész éves működésre alkalmas. A felső két szinten 7 szoba saját fürdőszobával, a földszinten pedig egy nappali + 2 szobás, balatoni panorámás terasszal rendelkező, külön bejáratú apartman található. A jól megtervezett, praktikus kialakítású, modern gépészettel rendelkező panzió fűtése gázkazánnal és vegyes tüzelésű kazánnal is megoldható, a megfelelő hőmérsékletről korszerű falhűtő és falfűtő rendszer gondoskodik. Az ingatlan értékét napkollektor és 8 autó elhelyezésére alkalmas, zárt, kamerával felszerelt parkoló növeli. A vendégek teljes ellátását a több, mint 30 éve működő, külön közműórákkal rendelkező kisvendéglő biztosíthatja melegkonyhával, tégla kemencével. Az épület felújítható, bővíthető, de akár el is bontható az új tulajdonos elképzelése szerint. A korábban épült családi ház 2020-ban új tetőt kapott, tetőtere beépíthető, ideális lakhely lehet az üzemeltető számára. A folyamatosan karban tartott, kiváló minőségű ingatlan egyedülálló befektetés egy jól működő, egész évben nyitva tartó panzió továbbvitelére, de tökéletes választás lehet céges üdülő működtetésére vagy egyéb üzleti vállalkozásra is. Egész éves turisztikai hasznosítás, több bevételi forrás egy helyen. A lokáció tekintetében egyedülálló, ritka lehetőség. A Balaton-part és a kikötő 80 m, a városi strand 200 m, a vasút, a Marina-Port csak pár perc séta, valamint bicikli út és kiemelkedő forgalmi potenciál. Ritka lehetőség Balaton-part közeli, működő turisztikai ingatlan vásárlására. Bővebb információért keressen telefonon! M318158

Referencia szám: M318158
További adatok
Telekterület: -
Kert mérete: -
Erkély mérete: -
Felszereltség: -
Parkolás: lakáshoz van kültéri parkoló
Kilátás: -
Egyéb extrák:  
Hirdető adatai
Hirdető neve: otpip.hu - Siófok Sió utca 10 - OTP Ingatlanpont Iroda
Kapcsolattartó: Zsitnyányi Ágnes
Hirdető telefonszáma: +36-70-316-3864
Honlap: -
 
Üzenetet küldhet a hirdetőnek, árajánlatot tehet az ingatlanra:
Az Ön neve:
Az Ön e-mail címe:
Üzenet: