Ingatlan Televízió
Ingatlan Televízió
további hirdetések
adatlap bezárása

Eger 
 

Hivatkozási szám: 5851352
Ingatlan adatai
Irányár: 44 900 000 Ft
Típus: lakás (tégla)
Kategória: eladó
Alapterület: 90 m2
Fűtés: elektromos
Állapota: felújított
Szobák száma: 2
Építés éve: 2015
Szintek száma: 2
Részletes leírás
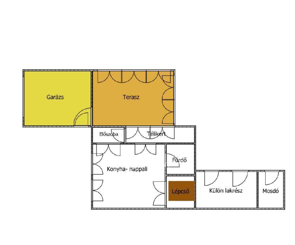
Eger, Almárvölgy csendes, természetközeli részén eladásra kínálunk egy 2015-ben épült, 90 m2-es, kétszintes családi házat, amely modern kialakításával és önfenntartó rendszerével ideális választás lehet mind állandó lakhatásra, mind hétvégi pihenőhelynek.

Az ingatlan földszintjén egy tágas amerikai konyhás nappali található, melynek meghitt hangulatáról egy kandalló gondoskodik, továbbá egy fürdőszoba, előszoba és egy napfényes télikert kapott helyet, míg a felső szinten egy rendkívül nagy méretű hálószoba, valamint egy külön mosdó található.

A ház kiváló energetikai tulajdonságokkal rendelkezik: szigetelt, napelem rendszerrel felszerelt, melynek köszönhetően teljesen önfenntartó. A hőszigetelt fa nyílászárók zsalugáterrel ellátottak, a vizet pedig házi vízmű biztosítja. A fűtés minden szinten hűtő-fűtő klíma, valamint a nappaliban található kandalló látja el.

A házhoz tartozik egy kétállásos, hidegburkolattal ellátott garázs, amely közvetlenül az épület mellett található. Az ingatlan egyik különlegessége a 35 m2-es, fedett, zárt terasz, amely egész évben kellemes helyszínt biztosít a kikapcsolódásra.

Az épület további helyiségei akár külön lakként is használható, hiszen saját fűtési rendszerrel és vizes kiállással rendelkezik. Az udvar gondosan parkosított, rendezett, és mérete miatt gazdálkodásra is kiválóan alkalmas.

Ha egy csendes, természetközeli, önfenntartó otthont keres Eger vonzáskörzetében, ne hagyja ki ezt a kivételes lehetőséget!

Referencia szám: M318433
További adatok
Telekterület: 730 m2
Kert mérete: -
Erkély mérete: -
Felszereltség: -
Parkolás: garázs
Kilátás: -
Egyéb extrák:  
Hirdető adatai
Hirdető neve: otpip.hu - Eger Kertész utca 84 - OTP Ingatlanpont Iroda
Kapcsolattartó: Herger-Varga Hajnalka
Hirdető telefonszáma: +36-20-433-4804
Honlap: -
 
Üzenetet küldhet a hirdetőnek, árajánlatot tehet az ingatlanra:
Az Ön neve:
Az Ön e-mail címe:
Üzenet: