Ingatlan Televízió
Ingatlan Televízió
további hirdetések
adatlap bezárása

Kecskemét 
 

Hivatkozási szám: 5851825
Ingatlan adatai
Irányár: 129 990 000 Ft
Típus: ház
Kategória: eladó
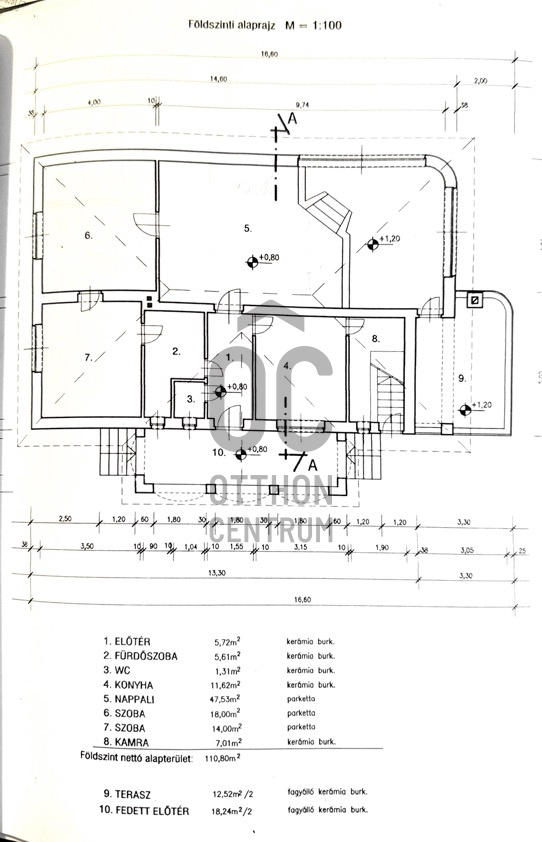
Alapterület: 153 m2
Fűtés: gáz (cirko)
Állapota: -
Szobák száma: 3
Építés éve: 1963
Szintek száma: -
Részletes leírás
Kecskemét egyik legértékesebb, villanegyedi részén eladó egy önálló, földszintes, bruttó 183 m²-es, 3 szobás téglaépítésű polgári családi ház, amely egy 648 m²-es, összközműves telken található, közvetlenül a Széchenyi körútra néző elhelyezkedéssel.

Az ingatlan jó állapotú, dupla terasszal, 2,95 m-es belmagassággal, új elektromos hálózattal, valamint DNY tájolással rendelkezik, így egész nap világos és barátságos az otthon.
Fűtéséről gázkazán és 4 darab hűtő–fűtő klíma gondoskodik, továbbá H-tarifa is rendelkezésre áll. A ház bútorozottan eladó, azonnal költözhető.

A tetőtér hivatalos tervrajzzal rendelkezik így beépíthető, további bővítési lehetőséget kínál. A telken található továbbá fúrt kút, egy 11 m²-es melléképület, ipari áram, Type 2 elektromosautó-töltő, valamint egy 5 méteres elektromos úszókapu is. A ház rendelkezik 35m2-es jól használható pincével is, amely kiváló tárolásra, illetve műhelynek.

Az ingatlan ideális családosoknak, akik kényelmes otthont keresnek, de befektetésre, céges irodának, társasház kialakítására, bemutatóteremnek, vagy bármilyen ipari tevékenységhez is tökéletesen alkalmas.
Ritka lehetőség Kecskemét egyik legjobb környékén.

Bővebb információért várom jelentkezését! Jöjjön el, nézzük meg együtt!

Ha a vásárláshoz a jelenlegi ingatlana eladására van szükség, akkor abban is szívesen együttműködőm Önnel!
További adatok
Telekterület: 648 m2
Kert mérete: 648 m2
Erkély mérete: 17 m2
Felszereltség: -
Parkolás: -
Kilátás: -
Egyéb extrák:  
Hirdető adatai
Hirdető neve: Otthon Centrum
Kapcsolattartó: Horváth Alex
Hirdető telefonszáma: +36 70 412 3281
Honlap: -
 
Üzenetet küldhet a hirdetőnek, árajánlatot tehet az ingatlanra:
Az Ön neve:
Az Ön e-mail címe:
Üzenet: