Ingatlan Televízió
Ingatlan Televízió
további hirdetések
adatlap bezárása

Budapest, X.kerület 
 

Hivatkozási szám: 5852122
Ingatlan adatai
Irányár: 277 000 000 Ft
Típus: kereskedelmi/ipari ingatlan
Kategória: eladó
Alapterület: 550 m2
Fűtés: -
Állapota: -
Szobák száma: -
Építés éve: 1989
Szintek száma: -
Részletes leírás
Eladóvá vált egy családi házban működő gyártó cég telephelyeként szolgáló ingatlan!

Az ingatlan saját 1020 m2-es telekkel rendelkezik, ami a Keresztúri úton található!
BEFEKTETÉSI LEHETŐSÉG! ELADÁS-VISSZABÉRLÉSI KONSTRUKCIÓVAL IS!
A tulajdonos, eladás után az ingatlant akár hosszútávú bérleti szerződéssel is visszabérelné.

Az ingatlan főbb jellemzői:
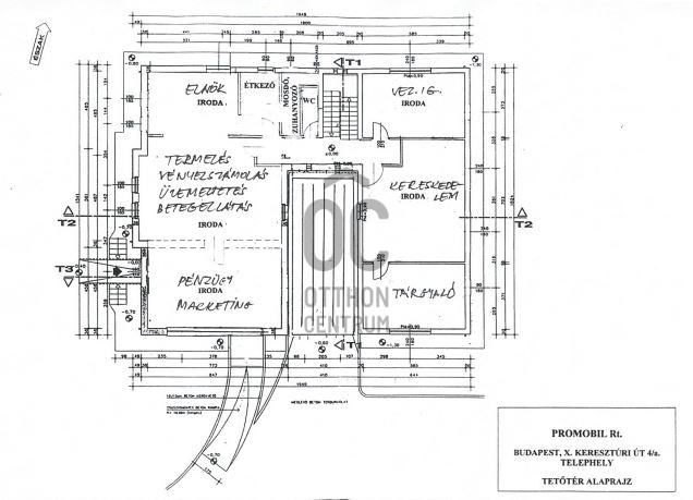
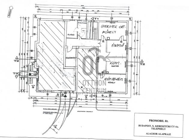
- Az épület szintjei a földszint, emelet és az alagsor
- Fűtése cirkó kazán
- Víz, gáz, csatorna bekötve
- Minden helyiség fűtött
- Az emeleten 6, a földszinten 4, az alagsorban 1 klímaberendezés található
- Az ingatlan riasztó- és kamerarendszerrel felszerelt
- Az ingatlanhoz tartozik 3 faház, valamint 9 fémkonténer ( 3 konténer a szomszéd ingatlan területén található, érvényes bérleti szerződés jár hozzá)
- Az udvaron 10-12 parkolóhely található
- Az épület szigeteléssel rendelkezik

A földszinti helységek (315 cm-es belmagasság, 255,4 m2) :
- előtér/recepció 28 m2
-üzlet 23,08 m2
-orvosi váróterem
-orvosi rendelő
-5 kisebb helyiség
-1 mellékhelyiség
-4 műhely 89 m2
- közlekedő

Az emeleti helységek (255 cm-es belmagasság, 167 m2) :
-6 irodahelyiség
-2 mellékhelyiség
-1 teakonyha
- közlekedő

Az alagsori helységek (235 cm-es belmagasság, 128,43 m2):
-2 műhely 45 m2
-1 raktár 14,46 m2
-1 konyha 14,46 m2
-1 öltöző 6,8 m2
-1 zuhanyzó 2,8 m2
-1 mellékhelyiség 1,4 m2
-kazánház 12,3 m2
- közlekedő

Az ingatlan tömegközlekedéssel, személygépjárművel, és tehergépkocsival is kiválóan megközelíthető.

A gyártóegységek képei érthető módon nem publikusak, de kérésre elküldöm őket.

Az épület családi házon kívül használható irodának, logisztikai központnak, hostel-nek, műhelynek, irodaháznak, és számtalan lehetőség adott a jó közlekedés és elosztás miatt.

100 méteres körzetben SPAR, Aldi, egyéb üzletek, valamit benzinkút is található.

BKK megállók a közelben:
Busz: 44, 45, 67, 277
HÉV: H8, H9
Éjszakai: 908, 908A, 931
További adatok
Telekterület: -
Kert mérete: -
Erkély mérete: -
Felszereltség: -
Parkolás: -
Kilátás: -
Egyéb extrák:  
Hirdető adatai
Hirdető neve: Otthon Centrum
Kapcsolattartó: Kópis László
Hirdető telefonszáma: +36 70 412 3271
Honlap: -
 
Üzenetet küldhet a hirdetőnek, árajánlatot tehet az ingatlanra:
Az Ön neve:
Az Ön e-mail címe:
Üzenet: