Ingatlan Televízió
Ingatlan Televízió
további hirdetések
adatlap bezárása

Miskolc 
 

Hivatkozási szám: 5852357
Ingatlan adatai
Irányár: 35 500 000 Ft
Típus: lakás (panel)
Kategória: eladó
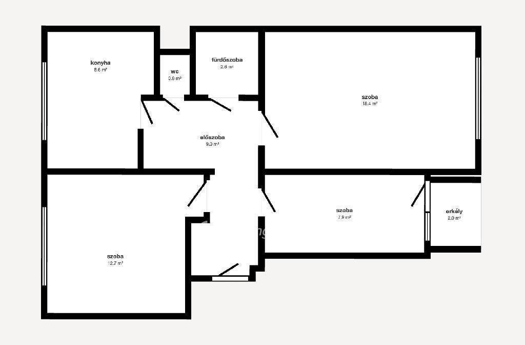
Alapterület: 61 m2
Fűtés: távfűtés
Állapota: felújított
Szobák száma: 2+1
Építés éve: 1973
Szintek száma: 1
Részletes leírás
Eladásra kínálunk Miskolcon a belvárostól 5 perc távolságra, a Kőporos utcában egy 61 nm-es, 2+1 félszobás , első emeleti jó állapotú távhős lakást. Az ingatlanban redőnnyel felszerelt műanyag nyílászárók kerültek beszerelésre, HI-SEC bejárati ajtóval egyetemben. Mind a meleg vízről, mind pedig az otthon melegéről távhő gondoskodik, ami egy felújított fürdőszobában még tovább tudja növelni a komfortérzetet. Az ingatlan jó elhelyezkedésének, valamint elosztásának köszönhetően befektetőknek, fiatal pároknak, illetve családosoknak egyaránt ideális választás lehet. Jöjjön és tekintsük meg együtt, ebben az ingatlanban nem fog csalódni. OTP Banki hátterünknek köszönhetően finanszírozási igényekben (pl. Otthon Start Program, Babaváró, Falusi CSOK, CSOK Plusz, Lakáshitel, Személyi kölcsön stb.), illetve biztosítások tekintetében is díjmentesen, soron kívüli ügyintézéssel segítem ügyfeleim! Az adásvételi szerződéshez igény esetén ügyvédet biztosítunk. Referenciaszám: M317297
További adatok
Telekterület: -
Kert mérete: -
Erkély mérete: -
Felszereltség: -
Parkolás: -
Kilátás: -
Egyéb extrák:  
Hirdető adatai
Hirdető neve: otpip.hu - Miskolc Szemere Bertalan utca 20 - OTP Ingatlanpont Iroda
Kapcsolattartó: Oroszné Ferencsák Mária
Hirdető telefonszáma: +36307091435
Honlap: -
 
Üzenetet küldhet a hirdetőnek, árajánlatot tehet az ingatlanra:
Az Ön neve:
Az Ön e-mail címe:
Üzenet: