Ingatlan Televízió
Ingatlan Televízió
további hirdetések
adatlap bezárása

Alsózsolca 
 

Hivatkozási szám: 5852359
Ingatlan adatai
Irányár: 40 000 000 Ft
Típus: kereskedelmi/ipari ingatlan
Kategória: eladó
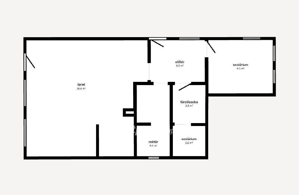
Alapterület: 72 m2
Fűtés: gáz (konvektor)
Állapota: felújított
Szobák száma: 1+3
Építés éve: 1970
Szintek száma: -
Részletes leírás
Alsózsolcán a központi részen főút mellett kínálunk eladásra egy bejáratott 25 éve folyamatosan sikeresen működő üzlethelyiséget ami kiváló befektetési vagy vállalkozási lehetőség. Az ingatlan jelenleg is üzemel de rövid időn belül birtokba vehető és azonnal kihasználható. Az üzlet egyik legnagyobb vonzereje a saját tulajdonú parkoló ami garantálja az ügyfelek kényelmes megközelítését a forgalmas főút mellett. A 72 négyzetméteres alapterület rugalmasan alakítható és számos üzleti célra alkalmas lehet tökéletes helyszín szépségszalonnak fodrászatnak kozmetikai szalonnak vagy éppen kis ABC-nek húsboltnak vagy más élelmiszerboltnak. Amennyiben más cél merül fel remek lehetőség rejlik benne a lakássá alakításra is mivel Zsolca központi részén fekszik így kényelmes és központi lakhatást is biztosíthat a jövendőbeli tulajdonosnak. OTP Banki hátterünknek köszönhetően finanszírozási igényekben (pl. Otthon Start Hitelprogram , Babaváró, Falusi CSOK, CSOK Plusz, Lakáshitel, Személyi kölcsön stb.), illetve biztosítások tekintetében is díjmentesen, soron kívüli ügyintézéssel segítem ügyfeleim! Referenciaszám:M316685
További adatok
Telekterület: -
Kert mérete: -
Erkély mérete: -
Felszereltség: -
Parkolás: lakáshoz van kültéri parkoló
Kilátás: -
Egyéb extrák:  
Hirdető adatai
Hirdető neve: otpip.hu - Miskolc Szemere Bertalan utca 20 - OTP Ingatlanpont Iroda
Kapcsolattartó: Kégl Zsolt
Hirdető telefonszáma: +36-70-201-5061
Honlap: -
 
Üzenetet küldhet a hirdetőnek, árajánlatot tehet az ingatlanra:
Az Ön neve:
Az Ön e-mail címe:
Üzenet: