Ingatlan Televízió
Ingatlan Televízió
további hirdetések
adatlap bezárása

Lipót 
 

Hivatkozási szám: 5852641
Ingatlan adatai
Irányár: 80 900 000 Ft
Típus: lakás (tégla)
Kategória: eladó
Alapterület: 95 m2
Fűtés: -
Állapota: új
Szobák száma: 4
Építés éve: 2026
Szintek száma: 1
Részletes leírás
ELADÓ ÚJ ÉPÍTÉSŰ CSALÁDI HÁZ LIPÓTON!

Eladásra kínálok Lipót egyik csendes utcájában egy önálló családi házat, 893nm-es telekrésszel!
Az ingatlan egy 1785nm-es telek hátsó telekrészén helyezkedik el, melyet egy murvás saját használatú úton lehet megközelíteni. A telekrész mérete 893 nm.

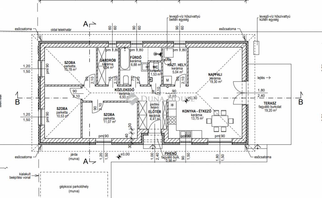
A családi ház nettó 95,54 nm hasznos alapterületű, 19,20nm terasszal.

Elosztása jól átgondolt, praktikus térkihasználtság jellemzi. Helyiségei a következők:
- 3 hálószoba
- gardrób
- közlekedő
- háztartási helyiség
- előtér
- konyha+ étkező
- nappali
- fürdőszoba
- wc

Műszaki jellemzők:
- 30cm- es csiszolt téglából épül, 15 cm hőszigetelést kap
- szeglemezes rácsos tetőszerkezet, BRAMAC antracit cseréppel és bádoggal
- 3 rétegű, KÖMMERLING ablakok, redőnnyel és szúnyoghálóval, a teraszajtón elektromos redőnnyel
- fűtés és melegvízellátás 16 kW hőszivattyúval, padlófűtéses hőleadással
- fűtésszabályozás: szobánként külön termosztát(3db)+ a nappaliban külön termosztát

EXTRÁK:
- klímaelőkészítés az árban
- az első telekrész között és mögött 2 méter magas, elemes betonkerítés, a hátsó oldalon 3D kerítés az árban
- a szokványosnál magasabb árkategóriájú burkolatok választhatók

A kivitelező számtalan referenciával rendelkezik, megbízható, stabil építési vállalat - MEGBÍZHATÓ, KISZÁMÍTHATÓ MINŐSÉG!

Az ingatlan minden tekintetben megfelel a mai kor igényeinek, KULCSRAKÉSZ állapotban a várható átadási idő 2026. III. negyedév!
Lipót kedvelt, remek infrastruktúrával rendelkező település, minden megtalálható itt, amire a hétköznapi életben szükséges lehet. Remek kikapcsolódási lehetőségeket nyújt, hiszen a Szigetköz közepén található, így a természetet kedvelőknek, vagy aktív kikapcsoldást kedvelőknek is ideális választás lehet Lipót.

Az ingatlan minden jelenleg elérhető kamattámogatott konstrukcióval megvásárolható. Kiemelten ajánlom családalapítás előtt állóknak, kisgyermekes családoknak!

Amennyiben felkeltette érdeklődését az ingatlan, hívjon bizalommal a hét bármely napján!
További adatok
Telekterület: 893 m2
Kert mérete: -
Erkély mérete: -
Felszereltség: -
Parkolás: lakáshoz van kültéri parkoló
Kilátás: -
Egyéb extrák:  
Hirdető adatai
Hirdető neve: dh.hu - Mosonmagyaróvár
Kapcsolattartó: Glaser Evelin Krisztina
Hirdető telefonszáma: +36206213553
Honlap: -
 
Üzenetet küldhet a hirdetőnek, árajánlatot tehet az ingatlanra:
Az Ön neve:
Az Ön e-mail címe:
Üzenet: