Ingatlan Televízió
Ingatlan Televízió
további hirdetések
adatlap bezárása

Jánossomorja 
Rákóczi utca 

Hivatkozási szám: 5852772
Ingatlan adatai
Irányár: 47 058 000 Ft
Típus: lakás (tégla)
Kategória: eladó
Alapterület: 51 m2
Fűtés: -
Állapota: új
Szobák száma: 2
Építés éve: 2025
Szintek száma: 1
Részletes leírás
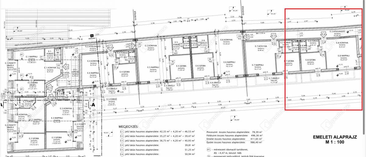
Az Openhouse Győr - Belváros Ingatlaniroda kínálatában eladó a #176871 hivatkozási számú jánossomorjai társasházi lakás.



Jánossomorja központi részén 2026 decemberi átadással 13 modern lakás és 2 üzlethelyiség épül. A lakások nappali + 1 szobás elosztásúak lesznek, különböző méretekben, kertkapcsolatos és emeleti lakások egyaránt elérhetőek.


- 13 db lakás
- 2 db üzlethelyiség
- korszerű kivitelezés
- monolit vasbeton födém szerkezet
- porotherm 30-as falazat
- 15 cm homlokzati hőszigetelés
- 3 rétegű nyílászárók
- hőszivattyús rendszer
- padlófűtés

- fűtéskészen kerül átadásra, de lehetőség van a kulcsrakész befejezésre is
- gépkocsibeálló kötelezően vásárolandó


- IE8 lakás 39,85 m2 + 22,6 m2 erkély

- Ár: 47.058.000,-
- Gépkocsibeálló : 2.000.000,-



Ha felkeltette érdeklődését ez az eladó jánossomorjai társasházi lakás, vagy bármely más társasházi lakás és bővebb információt szeretne, keressen bizalommal.Hivatkozási szám: #176871

Az Openhouse Győr - Belváros Ingatlaniroda tagjaként várom Önt az országos hálózatunk teljes kínálatával.

A társasházi lakás vásárláshoz hitelt igényelne? Ingyenes hitelközvetítéssel segít Önnek bankfüggetlen hitelszakértőnk.

További szolgáltatásainkkal (pl. értékbecslés, energetikai tanúsítvány, jogi háttér) is segítjük Önt a vásárlásban.
Az otthon érték. Az ingatlan üzlet.
További adatok
Telekterület: -
Kert mérete: -
Erkély mérete: -
Felszereltség: -
Parkolás: lakáshoz van kültéri parkoló
Kilátás: -
Egyéb extrák:  
Hirdető adatai
Hirdető neve: oh.hu - Openhouse Mosonmagyaróvár Ingatlaniroda
Kapcsolattartó: Dóka Sebestyén
Hirdető telefonszáma: +36709777833
Honlap: -
 
Üzenetet küldhet a hirdetőnek, árajánlatot tehet az ingatlanra:
Az Ön neve:
Az Ön e-mail címe:
Üzenet: