Ingatlan Televízió
Ingatlan Televízió
további hirdetések
adatlap bezárása

Szilvásvárad 
 

Hivatkozási szám: 5852889
Ingatlan adatai
Irányár: 224 900 000 Ft
Típus: lakás (tégla)
Kategória: eladó
Alapterület: 284 m2
Fűtés: gáz (cirko)
Állapota: felújított
Szobák száma: 6
Építés éve: 2024
Szintek száma: 2
Részletes leírás
Eladó exkluzív vendégház Szilvásvárad központi részén, a Szalajka-völgy bejáratától mindössze 400 méterre!
Szilvásvárad legfrekventáltabb pontján, közvetlenül a főút mellett kínálunk megvételre egy mindössze négy éve épült, kiemelkedően igényes, 284 m2-es, luxus komfortfokozatú családi házat, amely jelenleg is sikeresen működő vendégházként üzemel. A 1.000 m2-es, gondosan karbantartott telken elhelyezkedő ingatlan páratlan panorámával és tökéletes adottságokkal rendelkezik, így kivételes lehetőséget kínál mind befektetési, mind lakhatási célra.
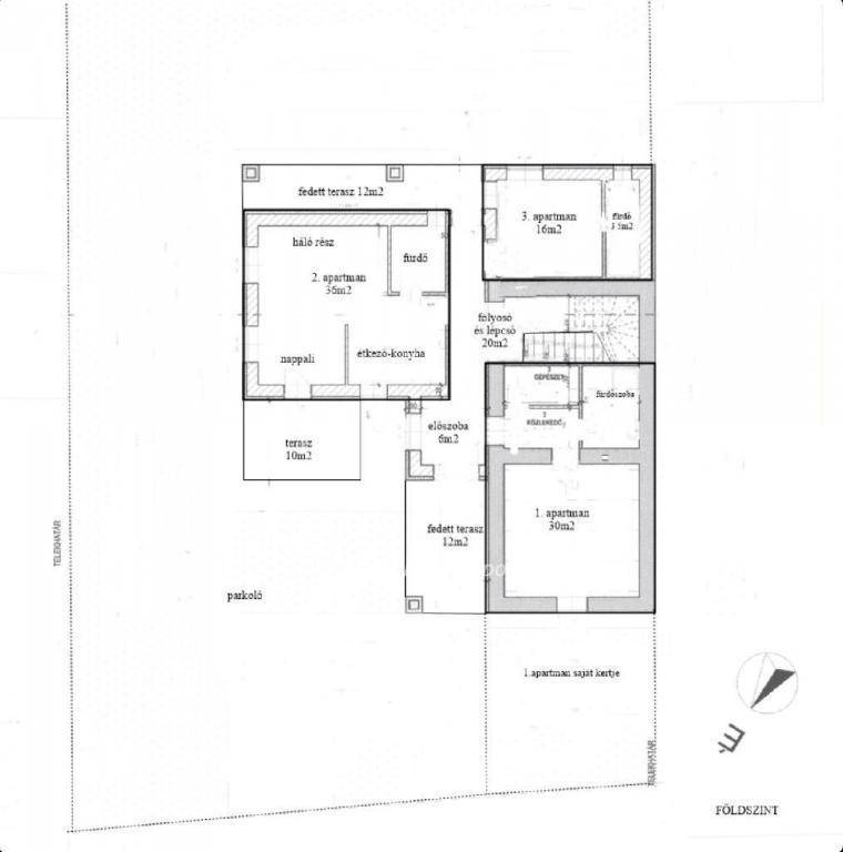
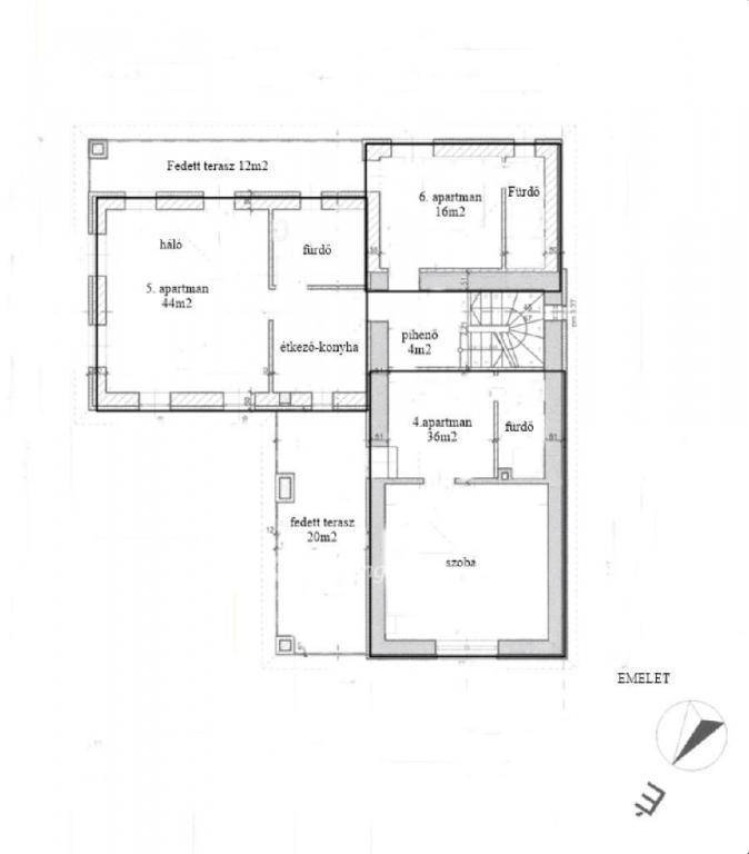
Az épületben hat, teljesen felszerelt apartman kapott helyet, mindegyik saját konyhával, fürdőszobával, valamint erkéllyel vagy terasszal kialakítva. Az apartmanok fűtése egyedileg szabályozható, ez pedig nemcsak a vendégek komfortját növeli, hanem rendkívül gazdaságossá teszi az üzemeltetést is.
A tágas udvarban 5-6 gépkocsi számára kialakított parkolóhely áll rendelkezésre, továbbá az ingatlan előtt egy aszfaltos magánparkoló is a vendégek és a tulajdonos kényelmét szolgálja. Az ingatlan építészeti minősége, elhelyezkedése és igényes kivitelezése együttesen biztosítják, hogy a vendégház magas kihasználtsággal és stabil jövedelemmel működhessen.
Ez az egyedülálló ingatlan azonnal folytatható, bejáratott vendégházként is kiváló opciónak számít Magyarország egyik legnépszerűbb turisztikai célpontján. Ugyanakkor azok számára is tökéletes választás, akik exkluzív családi rezidenciát szeretnének a Bükk hegység lenyűgöző természeti környezetében, kivételes nyugalmat és inspiráló panorámát élvezve.

Referencia szám: M318515
További adatok
Telekterület: 1 000 m2
Kert mérete: -
Erkély mérete: -
Felszereltség: -
Parkolás: lakáshoz van kültéri parkoló
Kilátás: -
Egyéb extrák:  
Hirdető adatai
Hirdető neve: otpip.hu - Eger Kertész utca 84 - OTP Ingatlanpont Iroda
Kapcsolattartó: Dusikné Türke Tímea
Hirdető telefonszáma: +36-20-426-3576
Honlap: -
 
Üzenetet küldhet a hirdetőnek, árajánlatot tehet az ingatlanra:
Az Ön neve:
Az Ön e-mail címe:
Üzenet: