Ingatlan Televízió
Ingatlan Televízió
további hirdetések
adatlap bezárása

Mosonmagyaróvár 
 

Hivatkozási szám: 5852954
Ingatlan adatai
Irányár: 52 000 000 Ft
Típus: lakás (tégla)
Kategória: eladó
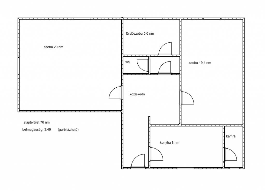
Alapterület: 76 m2
Fűtés: gáz (cirko)
Állapota: felújított
Szobák száma: 2
Építés éve: 1910
Szintek száma: 1
Részletes leírás
Eladó Mosonmagyaróvár kedvelt ipartelepi részén, egy patinás, 1900-as évek elején épült, masszív téglaépületben található, 76 nm-es, magasföldszinti lakás. Az ingatlan kivételes lehetőségeket rejt: tágas terei, 3,49 méteres belmagassága és stabil szerkezete azonnal magával ragadja a látogatót.

Miért érdemes ezt a lakást választania?

Azonnal költözhető műszaki tartalom: A legfontosabb és legköltségesebb felújításokon már túl vagyunk!

ÚJ FŰTÉSRENDSZER: Korszerű, kondenzációs gázkazán gondoskodik a melegről, így a rezsi alacsonyan tartható.

HŐSZIGETELT NYÍLÁSZÁRÓK: Az ablakokat modern műanyagra cserélték.

Térnövelés felfelé: A 3,49 méteres belmagasság nemcsak elegáns „polgári” életérzést ad, hanem lehetőséget biztosít állógaléria kialakítására is, amivel a hasznos alapterület akár 20-30 nm-rel növelhető!

Befektetői aranybánya – Két lakás egyben? Az alaprajz zseniális elosztásának és a vizesblokkok központi elhelyezkedésének köszönhetően az ingatlan kis ráfordítással két külön bejáratú garzonlakássá vagy egy nappali + 3 hálószobás nagycsaládos otthonná alakítható. (A 29 nm-es nagyszoba önmagában is két helyiségre osztható).

Praktikus extrák: A lakáshoz tartozik két saját pincehelyiség (tárolásra kiváló) és egy hatalmas, rendezett padlásrész használati joga. A lépcsőház tiszta, a lakóközösség csendes, az udvar rendezett, így a nyugalom garantált.

Elhelyezkedés: Kiváló lokáció az ipartelepi részen: közel a munkahelyekhez, mégis nyugodt környezetben. A vastag falak nyáron hűvöset, télen meleget tartanak.

Ez az ingatlan tökéletes választás annak, aki szereti a tágas tereket, de nem akar a gépészeti felújítással bajlódni, illetve befektetőknek, akik a határ közelsége miatt kiadásban gondolkodnak.

Referencia szám: 3343-ITV
További adatok
Telekterület: -
Kert mérete: -
Erkély mérete: -
Felszereltség: -
Parkolás: utcán, közterületen
Kilátás: -
Egyéb extrák:  
Hirdető adatai
Hirdető neve: movinghome.hu - Mov-Ing Home
Kapcsolattartó: Dömötör Attila
Hirdető telefonszáma: +36308505560
Honlap: -
 
Üzenetet küldhet a hirdetőnek, árajánlatot tehet az ingatlanra:
Az Ön neve:
Az Ön e-mail címe:
Üzenet: