Ingatlan Televízió
Ingatlan Televízió
további hirdetések
adatlap bezárása

Budapest, XV.kerület 
 

Hivatkozási szám: 5853411
Ingatlan adatai
Irányár: 147 500 000 Ft
Típus: lakás (újépítésű)
Kategória: eladó
Alapterület: 142 m2
Fűtés: -
Állapota: új
Szobák száma: 6
Építés éve: 2026
Szintek száma: -
Részletes leírás
Most még elérhető!
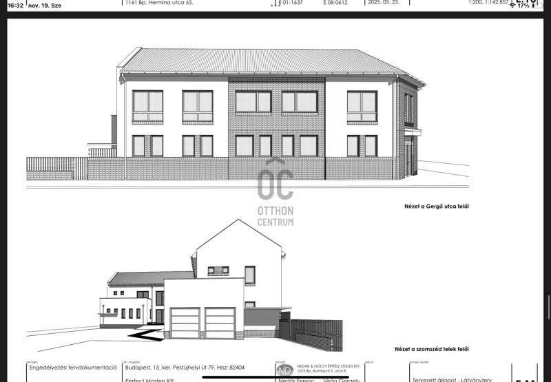
Eladó Pestújhelyen egy 142 m²-es, nappali + 5 szobás, újépítésű, kétszintes, 1. emeleti lakás
16,91 m²-es nagyméretű erkéllyel, mindössze 4 lakásos társasházban!

A XV. kerület egyik legkedveltebb részén található ingatlan világos, elegáns, modern belső terekkel és kiváló elrendezéssel rendelkezik.

Elrendezés – Átgondolt, családbarát kialakítás
Alsó szint (88,5 m²):
Tágas nappali amerikai konyhával
3 külön nyíló szoba
Fürdőszoba
Illemhely kézmosóval
16,91 m²-es erkély gyönyörű kertvárosi panorámával

Felső szint:
2 külön bejáratú szoba
Fürdőszoba WC-vel
A lakás ideális választás nagyobb családok számára, akik minőségi, hosszú távú otthont keresnek.
✨ Prémium műszaki tartalom – kompromisszumok nélkül

Modern gépészet:
Hőszivattyús padló- és mennyezetfűtés
Mennyezethűtés + fan-coil rendszer
Ariston okos melegvíz-rendszer
AA–B energetikai besorolás → alacsony rezsi, maximális komfort

Minőségi építőanyagok:
3 rétegű VEKA nyílászárók
12 cm Dryvit homlokzati szigetelés + 25 cm tetőtéri szigetelés
Silka hanggátló falak → kiváló zajszigetelés
Modern, elegáns burkolatok és beltéri ajtók
Letisztult, modern építészeti stílus

Az ingatlan tehermentes, újépítésű
Elérhető a 3%-os hitelezési lehetőség

A vevő rugalmasan dönthet burkolatokról, szaniterekről, festésről

2026 év végéig birtokba vehető

Kiváló lokáció – minden kéznél
Iskola, óvoda, boltok, orvosi rendelő – pár perc séta
Csendes, rendezett, biztonságos utca
Kiváló tömegközlekedés → gyors belvárosi elérés
Ideális kertvárosi hangulat és központi elhelyezkedés ritka párosítása

További lehetőségek
A lakáshoz tartozik – és kötelező megvásárolni:
Zárt garázs: 8 millió Ft vagy Kocsibeálló: 4 millió Ft
Saját, önálló, zárható tároló: 4 millió Ft

Ez a lakás nem csupán egy modern, kényelmes otthon, hanem egy magas műszaki tartalmú, értékálló befektetés is Pestújhely legjobb részén.

Érdeklődés vagy megtekintés esetén várom hívását!
Krasznai Izabella – otthon tanácsadó
További adatok
Telekterület: -
Kert mérete: -
Erkély mérete: 17 m2
Felszereltség: -
Parkolás: -
Kilátás: utcai
Egyéb extrák:  
Hirdető adatai
Hirdető neve: Otthon Centrum
Kapcsolattartó: Krasznai Izabella
Hirdető telefonszáma: +36 70 388 5056
Honlap: -
 
Üzenetet küldhet a hirdetőnek, árajánlatot tehet az ingatlanra:
Az Ön neve:
Az Ön e-mail címe:
Üzenet: