Ingatlan Televízió
Ingatlan Televízió
további hirdetések
adatlap bezárása

Budapest, XXI.kerület 
 

Hivatkozási szám: 5853672
Ingatlan adatai
Irányár: 61 900 000 Ft
Típus: lakás (panel)
Kategória: eladó
Alapterület: 62 m2
Fűtés: távfűtés
Állapota: -
Szobák száma: 3
Építés éve: 1987
Szintek száma: -
Részletes leírás
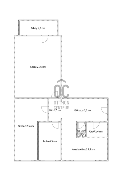
Eladó Csepelen, Csillagtelep közkedvelt, zöldövezeti részén egy napfényes, 62 m²-es, erkélyes, 2+1 szobás, jó állapotú panellakás – alacsony rezsivel, rendezett házban!

A lakás egy négyemeletes, folyamatosan karbantartott társasház legfelső szintjén található, mindkét irányba zöldre néző, kellemes kilátással és kiváló benapozottsággal.
A keleti fekvésű konyha és két szoba, valamint a nyugati tájolású nappali miatt a lakás egész nap világos és élhető.

Főbb jellemzők:
-62 m², jól kialakított alaprajz
-Erkélyes, 20 m² feletti nappali (nyugati tájolás, napellenző)
-12 m²-es hálószoba
-6,3 m²-es félszoba
-Ablakos konyha, beépített bútorokkal
-Felújított, zuhanyzós fürdő, külön WC
-Tágas előszoba nagy beépített szekrénnyel
-Fa nyílászárók, a keleti oldalon redőnnyel és szúnyoghálóval
-A nyugati oldalon szúnyogháló + az erkélyen napellenző
-Egy éves klíma a nappaliban
-Távfűtés
-Burkolatok: két szoba parkettás, egy szoba szőnyeges, a többi helyiség járólapos
-Több ponton záródó, biztonsági bejárati ajtó
-Nagy méretű saját tároló + közös tárolók

A társasház:
-Rendezett, rendszeresen karbantartott épület
-Frissen felújított lépcsőház (burkolat + festés)
-Stabil anyagi háttér, tartalékkal
-Nyugodt, biztonságos környezet sok zölddel

Költségek és parkolás:
-Közös költség: 12 000 Ft
-Parkolás ingyenes a ház előtt

Infrastruktúra:
-Kiváló közlekedés
-A közelben: több iskola, óvoda, üzletek, orvosi rendelő, gyógyszertár, játszóterek
-Családbarát, élhető környék

Tulajdoni viszonyok:
-1/1 tulajdon
-Tehermentes
További adatok
Telekterület: -
Kert mérete: -
Erkély mérete: 4 m2
Felszereltség: -
Parkolás: -
Kilátás: utcai
Egyéb extrák:  
Hirdető adatai
Hirdető neve: Otthon Centrum
Kapcsolattartó: Beck Zita
Hirdető telefonszáma: +36 70 388 5726
Honlap: -
 
Üzenetet küldhet a hirdetőnek, árajánlatot tehet az ingatlanra:
Az Ön neve:
Az Ön e-mail címe:
Üzenet: