Ingatlan Televízió
Ingatlan Televízió
további hirdetések
adatlap bezárása

Budapest, XV.kerület 
Rákospalota 

Hivatkozási szám: 5853779
Ingatlan adatai
Irányár: 84 700 000 Ft
Típus: lakás (újépítésű)
Kategória: eladó
Alapterület: 77 m2
Fűtés: -
Állapota: új
Szobák száma: 2
Építés éve: 2027
Szintek száma: -
Részletes leírás
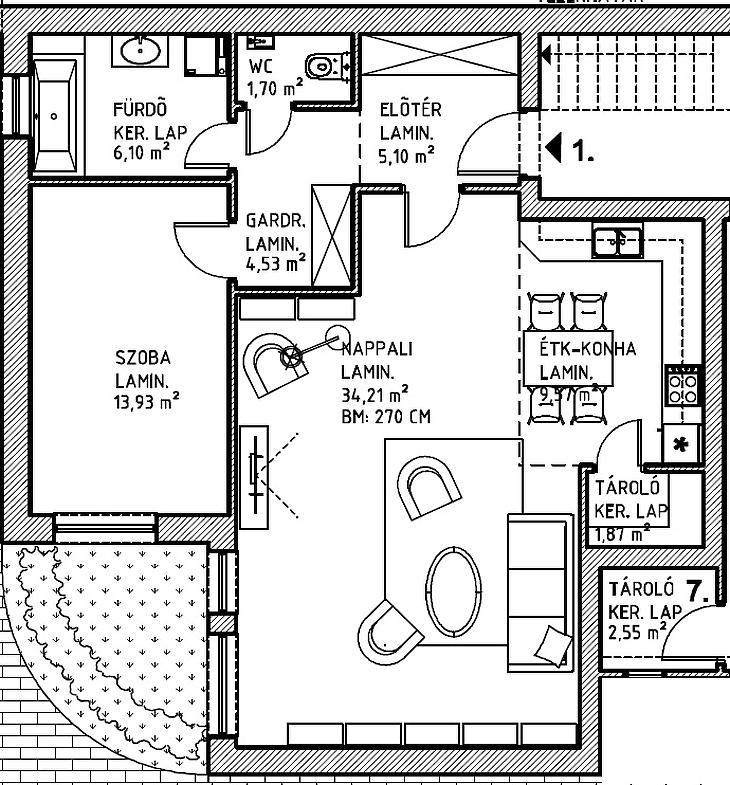
XV. KERÜLETBEN: FREKVENTÁLT RÉSZEN, ÚJ ÉPÍTÉSŰ, 77 M2, AMERIKAI KONYHÁS NAPPALIS, HÁLÓSZOBÁS, FÖLDSZINTI TÁRSASHÁZI TÉGLALAKÁS, TÁROLÓVAL.



A LAKÁS JELLEMZŐI:

A lakás várható átadási határideje 2027. A társasház 7 lakásos lesz, 3 szintes, 30-as porotherm téglából épül, amelyet egy 10 cm-es grafitos szigeteléssel is ellátnak majd.

A lakásban tágas amerikai konyhás nappali, szoba, fürdőszoba, előszoba, gardrób, tároló és mellékhelyiség kerül kialakításra.

A nyílászárók 6 légkamrás, 3 rétegű hőszigetelt ablakok lesznek. A fűtést kondenzációs kazán fogja biztosítani, a hideg burkolatok alatt padlófűtés kerül kialakításra, a szobákban pedig lapradiátorokat szerelnek fel és 1 hűtő-fűtő klímát.

Az ár tartalmazza a burkolatok, szerelvények és szaniterek beépítését, az anyag árat nem.

Igény esetén extra költséggel kérhető: elektromos redőny, kamera, riasztó, konyhabútor, beépített szekrények.

Lehetőség van plusz tároló (2.000.000 Ft/db), illetve udvari autóbeálló (2.500.000 Ft/db.) vásárlásához.

Referencia ingatlanok megtekintése is lehetséges.



FINANSZÍROZÁS:

Az ingatlan TEHERMENTES lesz, hitelre is megvásárolható. Bankfüggetlen tanácsadóink, az ország összes pénzintézete közül gyorsan és gördülékenyen találja meg az Önnek legmegfelelőbb konstrukciót, egyedi kedvezményekkel. A hitel közvetítés díjmentes.

Várjuk hívását munkanapokon 09:00-18:00 között.

A hirdetésben szereplő adatok tájékoztató jellegűek.

Amennyiben eladná saját ingatlanát, több mint 10 éve működő, kifejezetten a kerületre szakosodott irodánktól, INGYENES ÉRTÉKBECSLÉST kérhet.
További adatok
Telekterület: -
Kert mérete: -
Erkély mérete: -
Felszereltség: -
Parkolás: -
Kilátás: utcai
Egyéb extrák:  
Hirdető adatai
Hirdető neve: MPD Hungary Kft.
Kapcsolattartó: Imobiliare Kft.
Hirdető telefonszáma: +3612305153
Honlap: -
 
Üzenetet küldhet a hirdetőnek, árajánlatot tehet az ingatlanra:
Az Ön neve:
Az Ön e-mail címe:
Üzenet: