Ingatlan Televízió
Ingatlan Televízió
további hirdetések
adatlap bezárása

Mosonmagyaróvár 
 

Hivatkozási szám: 5854130
Ingatlan adatai
Irányár: 120 000 000 Ft
Típus: lakás (tégla)
Kategória: eladó
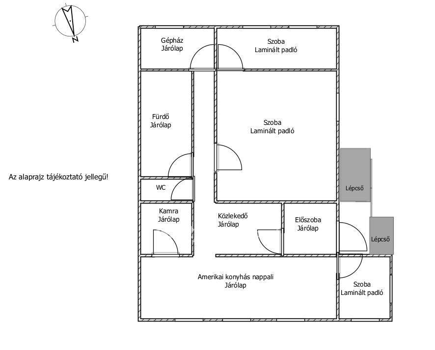
Alapterület: 154 m2
Fűtés: gáz (cirko)
Állapota: felújított
Szobák száma: 3+1
Építés éve: 1980
Szintek száma: 1
Részletes leírás
Mosonmagyaróváron eladó, gondosan karbantartott családi ház csendes, belvároshoz közeli övezetben!

Eladásra kínálok Mosonmagyaróvár egyik kedvelt részén, csendes, családi házas utcában található, 155 nm-es, folyamatosan karbantartott és felújított, kiváló állapotú családi házat, amely költözésre készen várja új tulajdonosát.

Az ingatlan elhelyezkedése rendkívül kedvező: közel az M1 autópályához, a határhoz és Győrhöz, így ingázóknak is ideális választás.

Az ingatlan megfelel a 3%-os hitel feltételeinek.

Főbb jellemzők:

155nm alapterület

714 nm-es, rendezett telek

4 jól elosztott, tágas szoba

Folyamatosan karbantartott és felújított ingatlan

Hőszigetelt, alacsony rezsivel

Gázfűtés

Saját garázs és kocsibeálló

Csendes utca, családi házas környezet, mégis közel a belvároshoz

Az ingatlan ideális választás családoknak, akik szeretnének egy kifogástalan állapotú, jó elhelyezkedésű otthont, ahol minden adott a kényelmes mindennapokhoz.
Amennyiben a hirdetés felkeltette az érdeklődését, hívjon bizalommal!
Referenciaszám: M317888
Amennyiben felkeltettük érdeklődését, kérem hívjon bizalommal!
Szabó Gábor +36-70-639-8927

Referencia szám: M317888-ITV
További adatok
Telekterület: 714 m2
Kert mérete: -
Erkély mérete: 7 m2
Felszereltség: -
Parkolás: garázs
Kilátás: -
Egyéb extrák:  
Hirdető adatai
Hirdető neve: otpip.hu - Győr Bartók Béla utca 8 - OTP Ingatlanpont Iroda
Kapcsolattartó: Szabó Gábor
Hirdető telefonszáma: +36-70-639-8927
Honlap: -
 
Üzenetet küldhet a hirdetőnek, árajánlatot tehet az ingatlanra:
Az Ön neve:
Az Ön e-mail címe:
Üzenet: