Ingatlan Televízió
Ingatlan Televízió
további hirdetések
adatlap bezárása

Csongrád 
 

Hivatkozási szám: 5854293
Ingatlan adatai
Irányár: 77 000 000 Ft
Típus: lakás (tégla)
Kategória: eladó
Alapterület: 226 m2
Fűtés: gáz (cirko)
Állapota: felújított
Szobák száma: 4+4
Építés éve: 1972
Szintek száma: 2
Részletes leírás
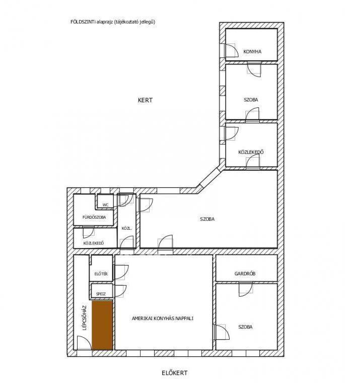
Teljeskörűen felújított családi ház eladó Csongrádon, a Bökényi városrészben!
Az önálló helyrajzi számmal rendelkező 2 szintes ház 226,8m2 haszos alapterületű, 2 lakrészből áll. Az ingatlanhoz saját kert tartozik. A telek 418m2.
A földszinti és az emeleti ingatlanrészbe az utcafrontról közös lépcsőházon keresztül juthatunk. A földszinti rész magában foglal 2 nappalit, 2 konyhát, fürdőszobát és egy nagyméretű hálószobát gardróbbal. Az emeleti részen egy konyha-étkező, 4 hálószoba és 2 fürdőszoba került kialakításra. Ideális lehet több generációs összeköltözők számára.
A lakóház teljeskörű felújításon esett át. Új elektromos, víz vezetékek, aljzat-, homlokzati- és födém szigetelés, korszerű hőszigetelt új nyílászárók. 2 gázórával, 3 gázkazánnal és víz almérővel rendelkezik.
Az egész házra jellemző az igényes kialakítás, ide tényleg csak költözni kell.
Kiváló ár-érték arány.
Amennyiben felkeltettem érdeklődését, hívjon bizalommal!
Az OTP Ingatlanpont teljes körű ügyintézéssel áll az eladók és vevők rendelkezésére. A kínálatunkból választott ingatlan finanszírozásához kedvezményes hitelkonstrukciót biztosítunk. Az OTP Banknál elérhető Babaváró, falusi CSOK, CSOK Plusz hitel és egyéb kölcsönök intézését díjmentesen vállaljuk. Az adásvételi szerződés megkötéséhez igény szerint ügyvédet biztosítunk. Irodáink Szentes, Petőfi utca 12. a buszmegálló felől, és Csongrád, Fő utca 54. szám alatt várjuk a személyes érdeklődőket. Válasszuk ki együtt az Önnek legmegfelelőbb ajánlatot banki sorban állás nélkül!

Referencia szám: M316677-ITV
További adatok
Telekterület: 418 m2
Kert mérete: -
Erkély mérete: 33 m2
Felszereltség: -
Parkolás: lakáshoz van kültéri parkoló
Kilátás: -
Egyéb extrák:  
Hirdető adatai
Hirdető neve: otpip.hu - Csongrád Fő utca 54 - OTP Ingatlanpont Iroda
Kapcsolattartó: Petkov Gyöngyi Katalin
Hirdető telefonszáma: +36-20-985-2665
Honlap: -
 
Üzenetet küldhet a hirdetőnek, árajánlatot tehet az ingatlanra:
Az Ön neve:
Az Ön e-mail címe:
Üzenet: