Ingatlan Televízió
Ingatlan Televízió
további hirdetések
adatlap bezárása

Tiszavasvári 
 

Hivatkozási szám: 5854392
Ingatlan adatai
Irányár: 36 900 000 Ft
Típus: lakás (tégla)
Kategória: eladó
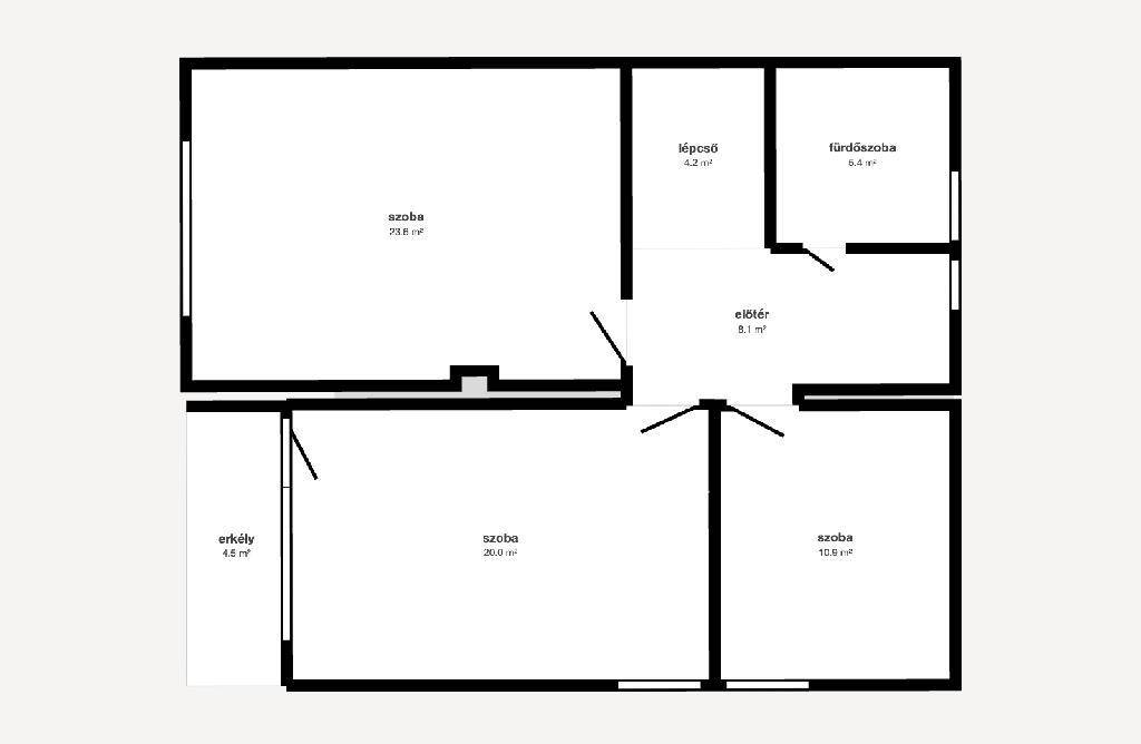
Alapterület: 180 m2
Fűtés: gáz (cirko)
Állapota: felújított
Szobák száma: 3+2
Építés éve: 1985
Szintek száma: 2
Részletes leírás
Eladó Tiszavasvári központi részén egy 180 négyzetméteres, kétszintes családi ház tágas, 1042 négyzetméteres telken. Az ingatlan tégla falazatú, masszív szerkezetű, új lemeztetővel ellátott, így hosszú távon is megbízható otthont kínál. A házban három szoba és két félszoba található, ami ideális nagyobb családok számára is. A kert rendezett, gondozott, konyhakerttel, ahol akár saját zöldségek is termeszthetők. A környék jó elhelyezkedésű, csendes és biztonságos, mégis közel minden fontos szolgáltatáshoz. Kényelmes, tágas otthon Tiszavasvári egyik legkedveltebb részén.
OTP Banki hátterünknek köszönhetően finanszírozási igényekben (pl. Otthon Start Hitelprogram, Babaváró, Falusi CSOK, CSOK Plusz, Lakáshitel, Személyi kölcsön stb.), illetve biztosítások tekintetében is díjmentesen, soron kívüli ügyintézéssel segítem ügyfeleim! Referenciaszám:M318263
További adatok
Telekterület: 1 042 m2
Kert mérete: -
Erkély mérete: -
Felszereltség: -
Parkolás: lakáshoz van kültéri parkoló
Kilátás: -
Egyéb extrák:  
Hirdető adatai
Hirdető neve: otpip.hu - Nyíregyháza Bocskai utca 18-20 - OTP Ingatlanpont Iroda
Kapcsolattartó: Kissné Orosz Ildikó Krisztina
Hirdető telefonszáma: +36204680753
Honlap: -
 
Üzenetet küldhet a hirdetőnek, árajánlatot tehet az ingatlanra:
Az Ön neve:
Az Ön e-mail címe:
Üzenet: