Ingatlan Televízió
Ingatlan Televízió
további hirdetések
adatlap bezárása

Miskolc 
Bodótetői út 

Hivatkozási szám: 5854436
Ingatlan adatai
Irányár: 61 000 000 Ft
Típus: lakás (tégla)
Kategória: eladó
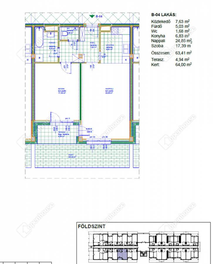
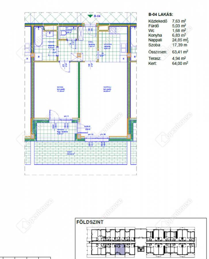
Alapterület: 63 m2
Fűtés: -
Állapota: új
Szobák száma: 2
Építés éve: 2025
Szintek száma: 1
Részletes leírás
Az Openhouse Miskolc Soltész Nagy Kálmán utcai Ingatlaniroda kínálatában eladó a #178739 hivatkozási számú miskolci társasházi lakás.

KIVÉTELES AJÁNLAT MISKOLC SZÍVÉBEN: PANORÁMÁS LUXUS A BODÓTETŐN!


Álmodjon egy új otthonról Miskolc legkeresettebb, exkluzív helyszínén, a Bodótetőn, ahol a prémium minőség és a lélegzetelállító panoráma találkozik!


Ez nem csupán egy lakás – ez egy életstílus.


Főbb Jellemzők:


- Elhelyezkedés: Miskolc legjobb helyén, a Bodótetőn, új társasházban.
- Lakások Paraméterei: Nappali + 1 szoba 63m2-en, Nappali + 2 szoba 77 m2-en, Nappali + 2 szoba 100 m2-en 33 m2-es terasszal. Minden lakáshoz nagy alapterületű félig nyitott, félig zárt erkély tartozik, a földszinti lakások pedig kertkapcsolatosak.
- Energiatudatos Megoldások: 20 cm-es homlokzati hőszigetelés, 3 rétegű hőszigetelt műanyag ablakok.
- Modern Gépészet: Mitsubishi levegő-levegő hőszivattyús hűtés-fűtési rendszer, villanybojlerek.
- Akusztikus Komfort: 30 cm vastag hanggátló falak a teljes nyugalomért.
- Kulcsrakész Állapot: Csak költöznie kell!
- Fenntarthatóság: Saját napelemek biztosítják az elektromos autók töltését a garázsban.
- Extrák: Kávézó és modern játszótér az udvaron, teremgarázs beállóhelyek és tárolók vásárlási lehetősége.


Befektetésre is Kiváló: Egyes lakások hosszú távra, kulcsrakészen, konyhabútorral felszerelve bérbe is kivehetők!


Ne maradjon le erről a páratlan lehetőségről! Tapasztalja meg a prémium életérzést!


Érdeklődjön még ma a részletekért és a megtekintésért!

Ha felkeltette érdeklődését ez az eladó miskolci társasházi lakás, vagy bármely más társasházi lakás és bővebb információt szeretne, keressen bizalommal.Hivatkozási szám: #178739

Az Openhouse Miskolc Soltész Nagy Kálmán utcai Ingatlaniroda tagjaként várom Önt az országos hálózatunk teljes kínálatával.

A társasházi lakás vásárláshoz hitelt igényelne? Ingyenes hitelközvetítéssel segít Önnek bankfüggetlen hitelszakértőnk.

További szolgáltatásainkkal (pl. értékbecslés, energetikai tanúsítvány, jogi háttér) is segítjük Önt a vásárlásban.
Az otthon érték. Az ingatlan üzlet.

Irányár: 61000000 Ft
Érd.: Tóth Bence +36205844661, Email: bence.toth@oh.hu, www.miskolc.oh.hu

Referencia szám: 178739
További adatok
Telekterület: 62 m2
Kert mérete: -
Erkély mérete: 62 m2
Felszereltség: -
Parkolás: garázs
Kilátás: -
Egyéb extrák:  
Hirdető adatai
Hirdető neve: oh.hu - Openhouse Miskolc Szentpáli utcai Ingatlaniroda
Kapcsolattartó: Tóth Bence
Hirdető telefonszáma: +36205844661
Honlap: -
 
Üzenetet küldhet a hirdetőnek, árajánlatot tehet az ingatlanra:
Az Ön neve:
Az Ön e-mail címe:
Üzenet: